The Bike House was built in Melbourne, Australia in 2014 by FMD Architects, and it was designed to accommodate a family of four that uses bicycles as a primary means of transportation. Therefore, the house needed to boast comfortable and versatile living areas as well as interior and exterior bike storage facilities. Since the owners were on a tight budget, the architects had to create compact living areas and use cost effective materials.
The building flaunts two floors as well as a southern recycled brick wall that is exposed internally and is used to store a number of racing bikes. On the outside, the house appears a simple grey sculpted box, while on the inside, it features rich textures and colors. The social areas and bedrooms are complemented by 3 flexible zones, one of which is located downstairs and can be used as a separate lounge or bedroom. There’s also a play space on the first floor that doubles up as a study, while the home office can be used by the adults for work or by the children as a computer area.
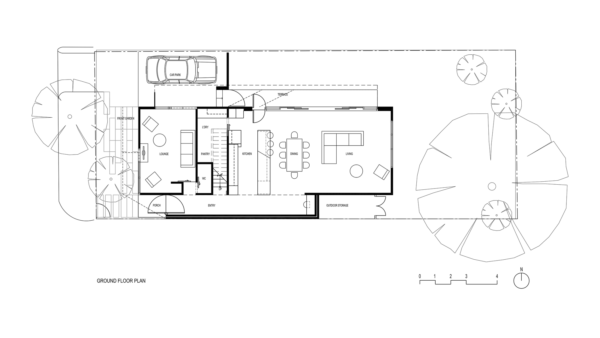
The south of the house includes a shed, which is used to store tools and more bikes.
From the architect:
The site is a small 300m2 suburban block in south east Melbourne. The brief was to design a new dwelling to accommodate a family of 4 while also including flexible spaces which can change as the children grow and the needs change. A collection of bikes also needed to be accommodated internally and externally as these are a major form of transport for the family.
The budget was very tight so the building areas were kept as compact as possible, and simple cost effective materials used throughout. A 2 storey structure was designed to minimise the building footprint and maximise the amount of garden space.
The strategy was to design a simple cement sheet box with elements which folded out of it to create shading devices and privacy screens where required. The fence unravels itself from the building, folding down from the entry canopy onto the street then winding around to conceal the bin enclosure. Triangular perforations in the fence aim to deter the local graffiti artists as well as allowing light to penetrate. This material is also used as a privacy screen on the 1st floor to prevent overlooking into neighbours’ properties.
In contrast the southern recycled brick wall offers itself as a canvas for the local graffiti artists which reside in the area. Internally it is left exposed internally and is used to store a series of racing bikes.
While the appearance from the street is a pristine grey sculpted box, in contrast, the interior is rich with texture and colour, reflecting the active life of its users. A simple palette of exposed brick, concrete slab, local timber, ply and laminate are used internally. The unfolding continues in the interior with the Kitchen ceiling wrapping down to become the cabinetry. Stone and timber are spliced together, imitating shadows cast by the canopies externally. Spaces fold and twist over themselves, in both the joinery and tiling, responding to the stretching and folding occurring on the façade.
Along with the bedrooms and living areas, 3 additional spaces were incorporated as flexible zones. Downstairs, one can be used as a
separate lounge or bedroom, while the 1st floor space can also be used as a play space or study, depending on the needs of the family at different times. A home office is also incorporated at the end of the brick corridor space, which can be used by either the parent working from home or as the childrens computer area. A shed is carefully concealed on the south of the building, accommodating more bikes and tools for bike builds.Every millimetre of space has a purpose, although the spaces are flexible enough to change as the family dynamics change over time.
Design Team: Fiona Dunin, Katherine Peasley, Robert Kolak, Caroline Tan, Alex Peck, Ryan Fothergill
Area: 202.0 sqm
Year: 2014
Photographs: John Gollings
Builder: Construction 32 P/L
Structural Engineer: Perrett Simson P/L
Building Surveyor: Wilsmore Nelson Goup P/L
Site Area: 298 m2














More Similar Articles Like This
These Top Tips Will Help You to Turn Your Garden into the Ultimate Glamping Site!
Behr’s Brilliant Blues: 70 Shades of Stunning Paint Colors
The Sophisticated Casa Villa Flamingo in Spain
Loving Luxury at Mardan Palace Resort, Turkey
Marvelous Anantara Dhigu Resort
Lawn Care Tips, The Basics For Each Season
Heavenly Lily Beach Resort & Spa In Huvahendhoo, Maldives
Lovelli Residence: Mediterranean-Style Dwelling in Bali