Acoustic Alchemy is a project developed by hyla architects. It is located in Singapore and it was completed in 2008.
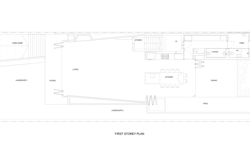
This 2-storey semi-detached home includes a living room, a dining room and a kitchen area, which were designed as one large AV and entertainment area and soundproofed by double glazed sliding-folding doors.The front end of the area is anchored by the massive sculptural speakers, while the outdoor terrace and the pool anchor the rear.
The bedroom windows of the second level are reminiscent of the owner’s horn speakers. Due to the skylight on the roof, the hallway on the second floor is highly illuminated, transmitting light into the first level, as well.
Photos by Derek Swalwell










More Similar Articles Like This
Unique Click Clack Hotel In Bogota, Colombia
The Sophisticated Casa Villa Flamingo in Spain
Different Types Of Foundations For Summer Houses and Garden Buildings
Marvelous Anantara Dhigu Resort
Spectacular Luxury House in Sarasota, Florida by DSDG Inc. Architects
Superb Luxury Penthouse in Portomaso, Malta
Spectacular Rooftop Apartment by Innocad
Exploring the New World of Luxury Hoteling