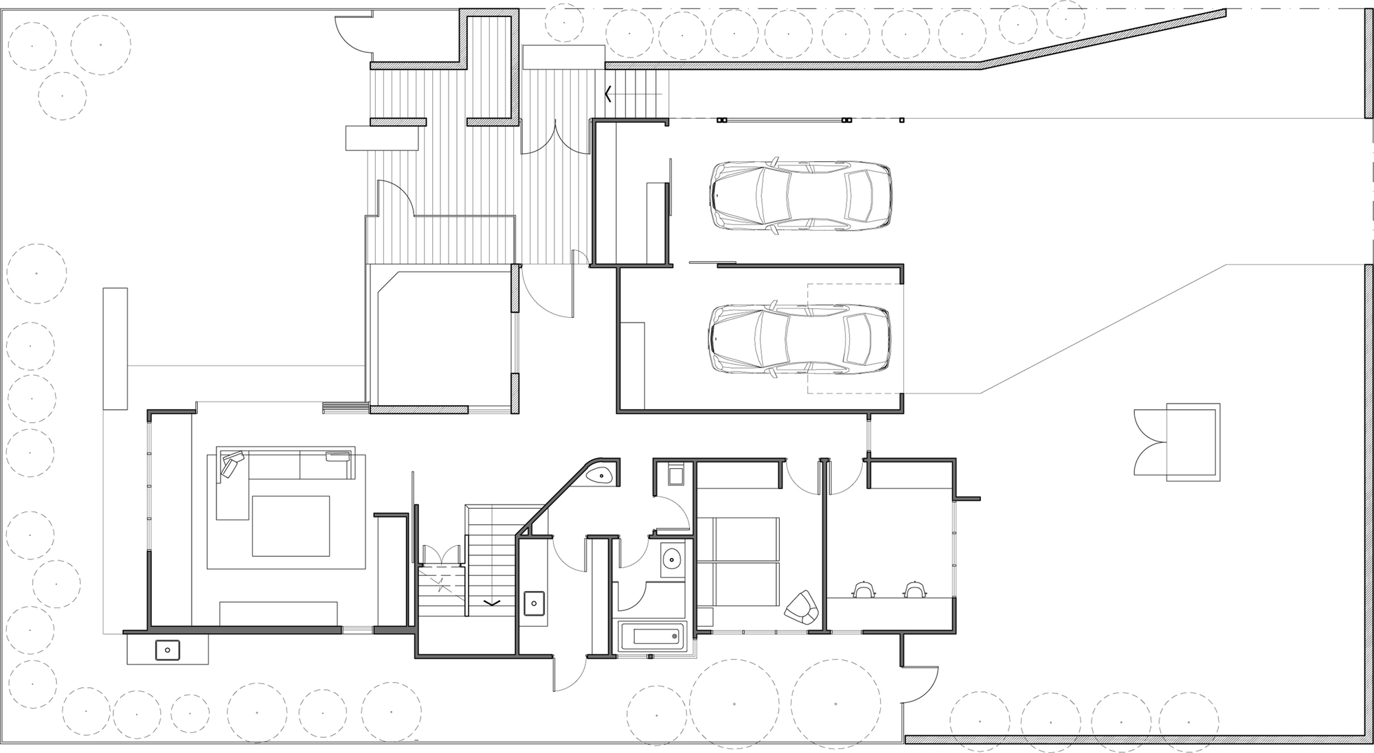
This spacious and beautifully designed residence was envisioned by Shaun Lockyer Architects and was built in 2013 at a premium location in North Stradbroke Island, Queensland, Australia for a young family. The home was created using exceptional materials that contribute to an atmosphere of opulence and fine taste that encourages the inhabitants to relax and enjoy the finer things in life.
Multiple wooden features such as the wall paneling and the staircase give off a sense of warmth and coziness that extends towards the terrace, which provides breathtaking views of the surrounding natural environment. This environment can also be admired from the kitchen thanks to a wide rectangular window that was placed right above the kitchen sink and counters in order to allow the residents to take in the views while they are preparing delicious meals.
Cozy, comfortable and tastefully decorated, the Bambara Street house is a fabulous abode that was constructed under the supervision of Shaun Lockyer as the architect in charge, who worked closely with Neva Wethereld as project architect, Bev Jenner Constructions as general contractor and Westera Partners as the structural engineer.
Photos by Scott Burrows
















More Similar Articles Like This
How Seattle Lawn Care Service Deals With Overgrown Lawns
Santa Barbara Style Home in Paradise Valley, Phoenix
Stunning Banyan Tree Ungasan Bali in Indonesia
Marvelous Anantara Dhigu Resort
Pure Perfection: Discover the Top White Paint Colors for a Flawless Décor
Saguaro Palm Springs by Joie de Vivre
Shadowed Depths: Vintage-inspired Paint Colors for Dark Basements
Spectacular Luxury House in Sarasota, Florida by DSDG Inc. Architects