The Xadrez Apartment is located in Lisboa, Portugal, in close proximity to several universities. This makes it highly coveted by students, which is why it was refurbished by UMA Collective with privacy and versatility in mind. The apartment features just 538 square feet of living space yet it can accommodate three students in great conditions.
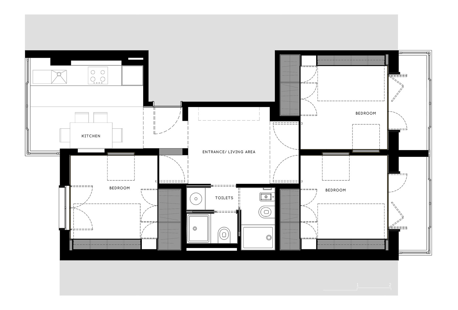
It dates back to the 1960s, and its refurbishment was completed in 2014. Apart from the bedrooms for the three students, it also includes toilets, a kitchen and an entrance space that can also be used as a shared living room. The bedrooms are cube-shaped and were designed to offer flexibility. They boast folding furnishings such as desks and beds, which means that they can be transformed into living, leisure or study areas without too much effort. The abode’s storage space was maximized and now allows the students to clear up the bedrooms quickly should the need arise.
The kitchen remained in its original spot and offers the best views of the nearby Tagus River.
From the architect:
Refurbishment of a 50sqm apartment dating from the 1961, located nearby to several Lisbon Universities in Ajuda. The existing apartment didn’t have any relevant feature besides its great location and river view.
In order to maximize the investment, the new program foresaw 3 student’s bedrooms, a kitchen, toilets and an entrance area that can double as a shared living room.
The renovation concept aimed to create a contemporary design, using in raw materials such as OSB panels and Valchromat (engineered colored wood).
The bedrooms – with the geometry of a cube with 2.50m edge – were designed in order to provide the maximum flexibility of the student’s private space. By using folding furniture, namely beds and desks, the bedrooms can be easily transformed in study, living or leisure areas. The storage space was maximized and designed to allow the bedroom to be quickly cleared up.
The bathroom was planned as a sequence of three spaces that can be used simultaneously and occupying a very small area.
The shared kitchen was kept in the original location, being the room with the best view over the Tagus River.
Architects: UMA Collective
Location: Beco Xadrez, 1300-011 Lisboa, Portugal
Architect in Charge: Jónatas Lareiro, Rui Cruz
Area: 50.0 sqm
Project Year: 2014
Photographs: Courtesy of Rui Cruz, UMA Collective











More Similar Articles Like This
Opulent Mandarin Oriental Hotel in Paris
Astonishing El Tovar by the Sea
Wonderful Yachting Club Villas at Elounda Beach by Davide Macullo Architects
How Seattle Lawn Care Service Deals With Overgrown Lawns
Outstanding Bodrum Houses in Yalikavak, Turkey
Green Gables Home In Fairfield, Connecticut, United States
Vibrant Wood Tones: Explore a Spectrum of Spray Paint Colors!
Lovelli Residence: Mediterranean-Style Dwelling in Bali