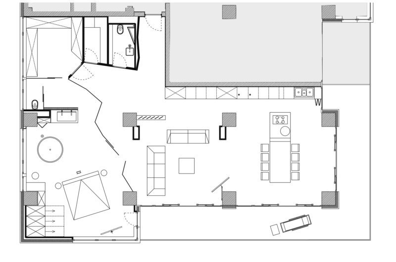
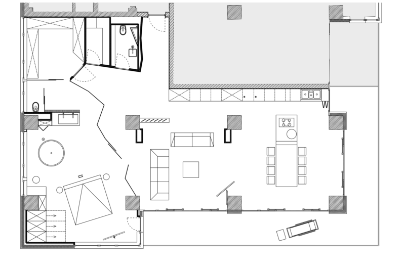
The Apartment “H” in Constanta, Romania is a 230.0 sqm location completed by Re-Act Now in 2010. If you take a look at the interior design you will see that white is the predominant color with strong accents of red, green, blue and so on. The interior designers had the intention of creating a beautiful open space with a continuous “sea coast feeling”.
The space is delimited by a glass partition which cut out the main sensation of innocence of the existing area.
While moving inside the apartment you get the impression of colors and reflections changing constantly.
















More Similar Articles Like This
Boracay Resort & Spa in the Fascinating Philippines
Plain Geometric Residence Designed by Lidija Dragisic
The Superb Maradiva Villas Resort & Spa in Mauritius
Heavenly Lily Beach Resort & Spa In Huvahendhoo, Maldives
Outstanding Bodrum Houses in Yalikavak, Turkey
Lawn Care Tips, The Basics For Each Season
Amazing Four Seasons Resort Bora Bora
Green Gables Home In Fairfield, Connecticut, United States