Paschke Danskin Double Loft is located in the district of Providence, Rhode Island, USA and was renovated by 3six0 Architecture in 2009 who managed to put together accommodations for two people with different professions.
First of all, the loft had to be divided and then the architects had to take into account the preferences of the owners: she liked airy and serene spaces while he liked raw materials, grilling steaks and had a passion for racing cars. All these had to merge somehow.
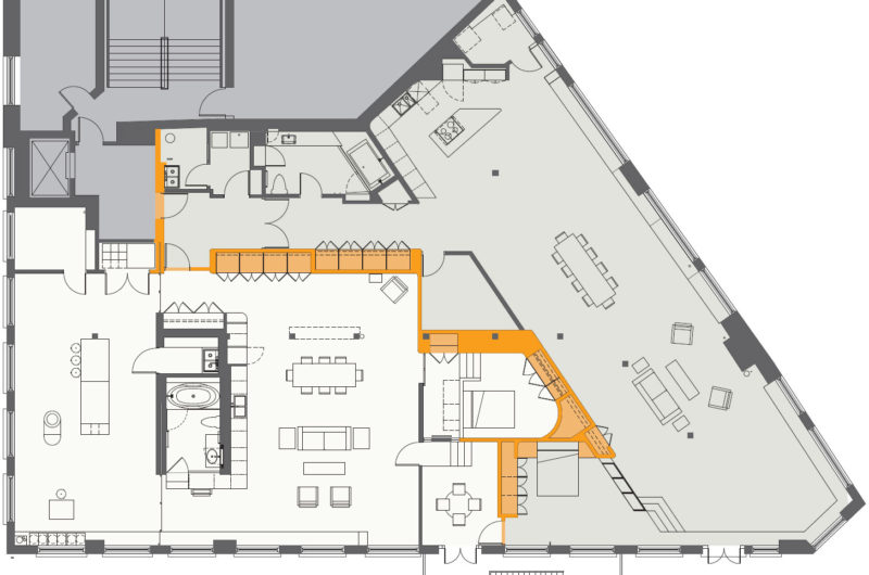
The organization of the two lofts was made by mingling cloud and stack into walls and storage areas.
Then, the stake was on the casework and detailing because while his casework was designed as stacked volumes which can be modified from closed cabinets to open shelves, her casework is more abstract with glass doors and a more monolithic expression.
Everything was done in order to emphasize the couple’s differences and independent arrangements.














More Similar Articles Like This
Spectacular Rooftop Apartment by Innocad
Saguaro Palm Springs by Joie de Vivre
Amazing Four Seasons Resort Bora Bora
The JKC1 House in Bukit Timah, Singapore
Marvelous Anantara Dhigu Resort
Beautiful Apartment in Stockholm for $1 Million
Unique Click Clack Hotel In Bogota, Colombia
Exceptional Coronado Bay Front Estate in California