Located in Mexico City, Mexico, this lavish contemporary apartment was designed by ARCO Arquitectura Contemporánea. It offers 3,067 square feet of spaces, all characterized by luminosity and spaciousness. The architects had to make some changes in space distribution in order to obtain the desired effects of brightness and openness.
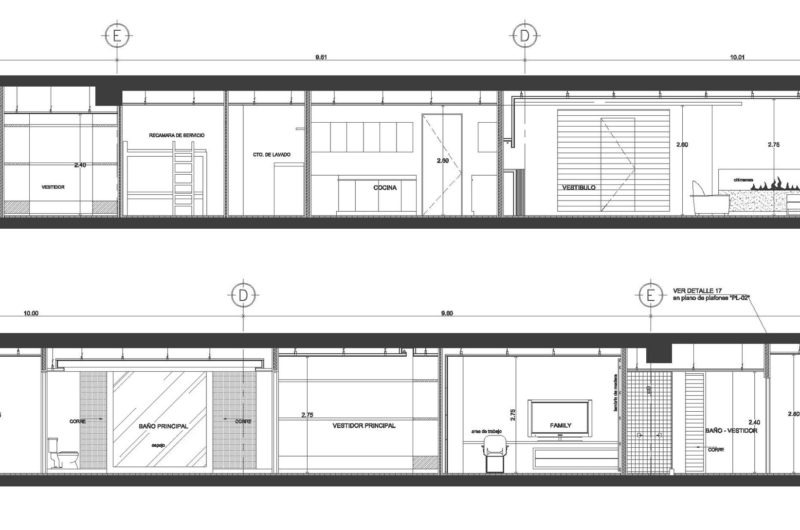
Access to the contemporary Armoni Apartment is ensured by an elevator which is wrapped in a wooden box. The elevator is situated in the center of the house, with the family room, kitchen, and secondary bedrooms being located on the left, and the main bedroom and public areas being housed on the opposite side.
Light and neutral colors work together with natural materials and fine finishes to create a warm ambiance and a really cozy feel throughout. With a perfectly fitting name, the Armoni Apartment is an excellent example of good taste, elegance, and warmth.












More Similar Articles Like This
Plain Geometric Residence Designed by Lidija Dragisic
Exquisite Crossacres Mansion In Surrey, England
How Seattle Lawn Care Service Deals With Overgrown Lawns
Loving Luxury at Mardan Palace Resort, Turkey
Best paint colors for the living room
The Sophisticated Casa Villa Flamingo in Spain
Lovelli Residence: Mediterranean-Style Dwelling in Bali
Behr’s Brilliant Blues: 70 Shades of Stunning Paint Colors