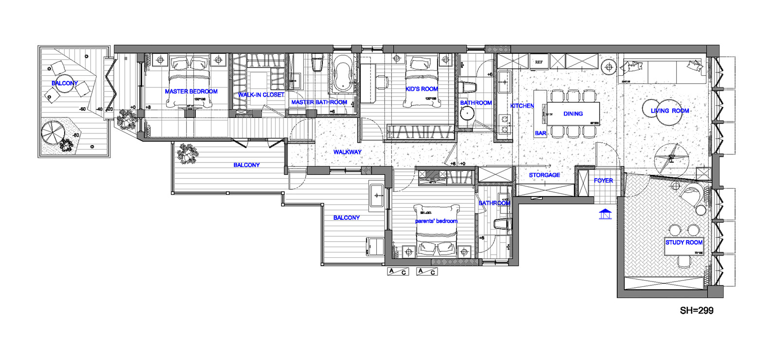
A company named CHI-TORCH Interior Design proved once again that even the oldest and most unimpressive residences can become exceptional as long as the designers are passionate enough. The apartment in question is four decades old and is located in Taipei. It flaunts 1,948 square feet of space and boasts a minimalistic and industrial interior design that offers utmost comfort and convenience while retaining a connection to the abode’s history.
To clarify, CHI-TORCH Interior Design decided to expose certain elements that would otherwise remain hidden from sight during conventional refurbishing projects. For example, some of the walls boast exposed brick elements that give off a raw rustic feel. The brickwork is complemented by high quality finishes such as the herringbone parquet flooring, while some of the furnishings were created using steel for a sturdy, industrial look.
From the architect:
It is a case about 40 year-old vintage apartment. To respect its history, CHI-TORCH deliberately made conscious efforts to retain details of time manifestation and proudly displaying building materials that many try to conceal.
The concept is blended with minimalism and industrial. CHI-TORCH specifically seeks out prefect mixture of sunshine and inner space by lowering window rails to maximize outside picturesque scene.
On the other hand, man-made and antique-chic look object is the result of CHI-TORCH’s idea whither it is a herringbone parquet flooring, naturally unfinished brick-works, lighting, gadget or furniture that are made from steel, metal or aged endemic woods of Taiwan preferably worn down or salvaged and recycled.
To sum, CHI-TORCH passionately designed and selected pieces that are as much about function as style to add historic and modern co-existing spirits to the most thoughtfully designed home.
- Location: Aiguo East Road & Section 2, Hangzhou South Road, Zhongzheng District, Taipei City, Taiwan 100
- Designer: Chlo’e Kao, Ciro Liu
- Area: 181.0 sqm
- Project Year: 2014














More Similar Articles Like This
Exquisite Crossacres Mansion In Surrey, England
The JKC1 House in Bukit Timah, Singapore
A Superb Italianate Mansion in California, USA
Loving Luxury at Mardan Palace Resort, Turkey
Green Gables Home In Fairfield, Connecticut, United States
Vibrant Concrete Floor Paint Colors to Elevate Your Space
Boracay Resort & Spa in the Fascinating Philippines
Marvelous Anantara Dhigu Resort