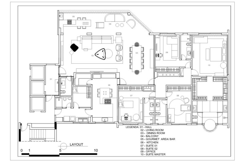
Apartment LA in Belo Horizonte, Brazil, was designed by the architect David Guerra, especially for a family with two kids. This home includes both the aspect of a country house and the practical style of the city. The place suffered some transformations before receiving the family. The walls that were separating the living room from the balcony were demolished and after that, the balcony became a gourmet bar/kitchen. The addition of a small fireplace made the living room warmer and more inviting, the new ambience combining colors, rustic and natural materials with other modern and technological ones, such as wool, natural linen, nude tones, leather in various colors, wood, gray Mister Cryl, Silestone rock, stainless steel, yellow metal, mirror, glass, bronze and many others.
The furniture was chosen in accordance with the ambient, contributing to a comfortable, warm, elegant and relaxed atmosphere.
The entire floor of the apartment passed through a bleaching process, giving it a more light and modern touch to the space.
The master bedroom is the most elegant room in the apartment due to the Limestone Persiano, cabinet with Italian glass and Rimadesio door. The kid’s room features a colorful and playful design that gives the space a hip and timeless style.





















More Similar Articles Like This
Stunning Sustainable Home in Costa Rica by SPG Architects
Seamlessly Apartment by the Beach by ZZ Architects
Beach House CN – A Superb Contemporary Home in Peru
Outstanding Bodrum Houses in Yalikavak, Turkey
5 Ways to Turn Your Yard Into a Fancy Space
Amazing Four Seasons Resort Bora Bora
Exploring the New World of Luxury Hoteling
Superb Luxury Penthouse in Portomaso, Malta