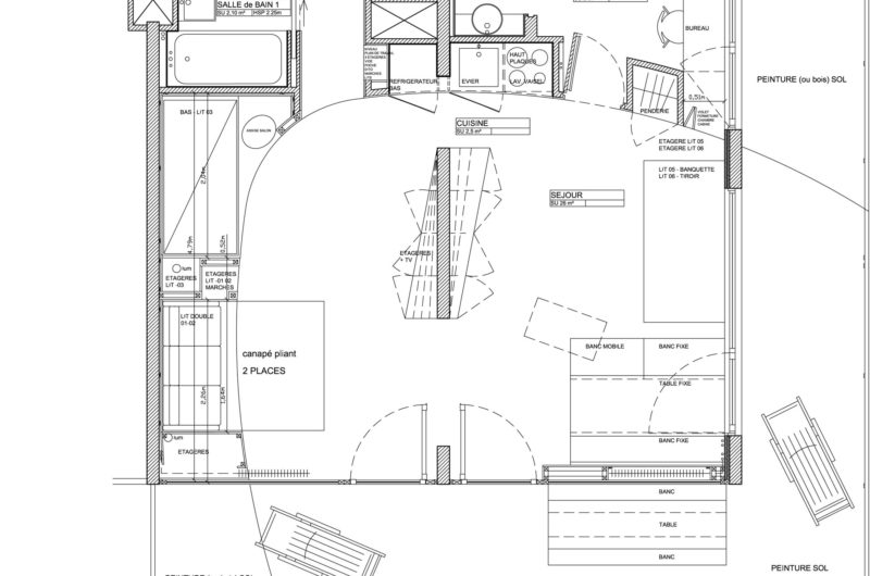
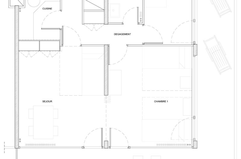
This ski resort apartment in Menuires, France was successfully redesigned by the expert team at H2o Architects. It is located in a 1965 building, and it flaunts a triple orientation, a detail which the old architects didn’t fully value. The project – called The Cabin – was a real challenge for the specialists at H2o Architects, but somehow they managed to tackle every problem and come up with really amazing solutions.
The brief called for larger living spaces in an unaltered structure. The architects had to add a bathroom and still keep the same number of beds (eight), all within the same original space: 55 square meters (592 square feet). Oh, and each room had to maintain its separate circulation too!
The idea around which H2o designed the entire project was simple: “rather than trying to fit the furniture into the apartment, we decided to fit the apartment into the furniture!” Well, it may sound simple, but it was actually far from it. The final result is really spectacular, with wood being the main material for every room. Surprising spaces and unexpected details make this apartment a really fun cabin in the mountains!
Photos by: Julien Attard


















More Similar Articles Like This
Saguaro Palm Springs by Joie de Vivre
Marvelous Anantara Dhigu Resort
Beautiful Apartment in Stockholm for $1 Million
Benjamin Moore Exterior Paint: Vibrant Shades for a Striking Home
Gorgeous And Spacious Home In Sunset Strip
Wonderful Yachting Club Villas at Elounda Beach by Davide Macullo Architects
Amazing Four Seasons Resort Bora Bora
Spectacular Luxury House in Sarasota, Florida by DSDG Inc. Architects