This sumptuous apartment is located within the Judges Bungalow Road neighborhood of Ahmedabad, India, and it was finished in 2104 by Apical Reform. Boasting 5,000 square feet of living space, the penthouse comprises the 11th and 12th floors of Parijat Residences, and it was designed to accommodate a family that is accustomed to enjoying a lavish lifestyle.
Minimalistic and luxurious, the abode features white and gray surfaces as well as novel shapes and a stunning decor that comprises customized artworks and stunning lighting systems. Access between the two levels is achieved with the help of a magnificent staircase that boasts a sculptural design. For a touch of variety, the architects also added splashes of color in various living areas in order to counteract the cold appearance of the gray and white elements. For example, a bedroom flaunts gray floors and walls decorated with deep red and purple artwork, not to mention the colorful pillows and blanket that beautify the bed.
From the architect:
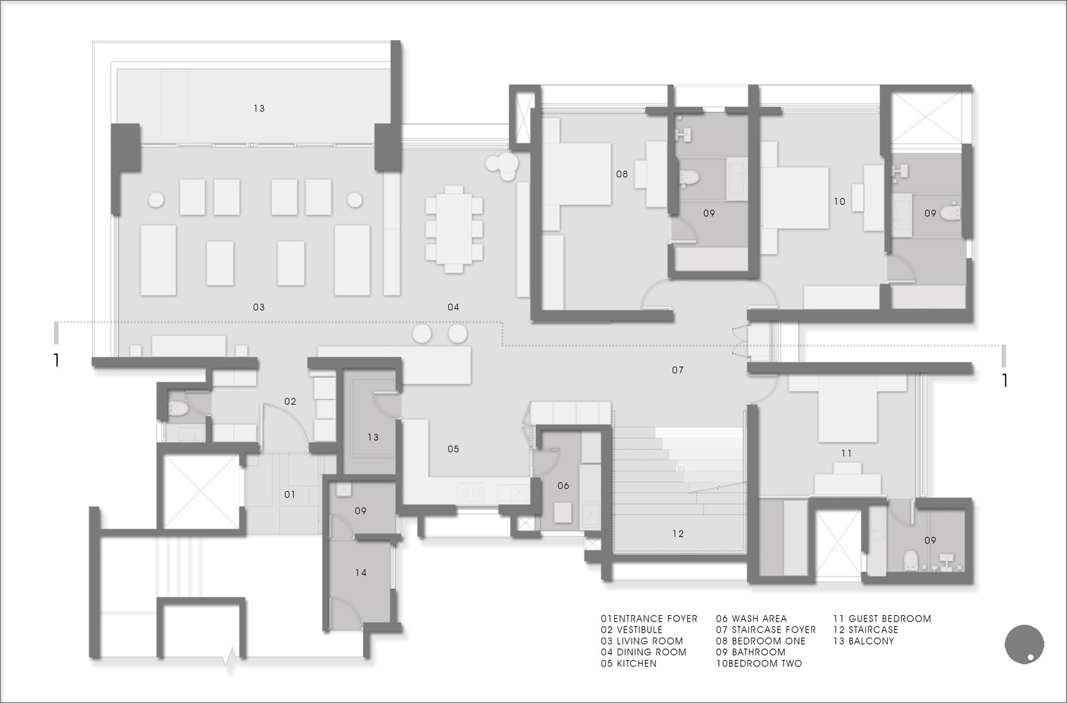
Located in the upmarket neighbourhood of Judges Bungalow Road in Ahmedabad, India, the penthouse comprises of, the internally connected, two west wing apartment units on the 11th and 12th floor of Parijat Residences.
Design of the slightest of details and nuances of various aspects of the interior was attempted through this project, wherein Apical Reform was purposed to transform a standardized apartment to serve a family’s austere yet lavish lifestyle.
Grey and white surfaces with discrete, novel forms unify the house, and provide the ideal canvas for a splash of colour. The carefully selected decor with intriguing lighting design and customized artworks add character to the spaces.
Be it climbing the dramatic staircase or dining at the breakfast table, the attempted blending of artistry into every space elevates its humble function to an event.
The project highlights include the patterned screens, distinctive artworks, lighting design and a sculptural staircase.
Architects: Apical Reform
Location: Paarijat Residences, Judges Bunglow Road, Sumeru, Bodakdev, Ahmedabad, Gujarat 380054,India
Area: 5000.0 ft2
Project Year: 2014
Photographs: Apical Reform
Manufacturers: BoConcept, Corvi, Dupont, Durlax, Enox, Hansgrohe, Honeywell, Hybec, Imola Ceramica, Marina Home, Norisys, Siemens, Smeg USA, Toto, Viega, Yale, corian
Principal/Designer: Amrish Patel
Director/Architect: Darshan Soni
CG Artist: Manoj Gundaniya
Architect: Maharshi Bhatacharya and Aditya Bhatt
Product Designer: Luisa Januzzi














More Similar Articles Like This
Secluded Naladhu Island in Maldives
70 Shades of Green: Benjamin Moore’s Vibrant Paint Colors
Best paint colors for the living room
Beach House CN – A Superb Contemporary Home in Peru
These Top Tips Will Help You to Turn Your Garden into the Ultimate Glamping Site!
Exquisite Crossacres Mansion In Surrey, England
6 Garden and Lawn Tips to Get Ready for Spring
Vibrant Concrete Floor Paint Colors to Elevate Your Space