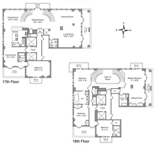
This spectacular duplex penthouse can be found in Brooklyn, New York, only 10 minutes from Wall Street. It is a marvelous home, with stunning views over the city, vast open spaces, high ceilings, five balconies, two terraces, and giant floor-to-ceiling windows.
It has 5 bedrooms, 5 bathrooms, and a total of 5,100 square feet of space. Every inch of it spells luxury and high living, with expensive finishes and exquisite furnishings making up an excellent backdrop for living and entertaining. Every space and room can be infinitely customized, so even though the duplex is stunning as it is, the buyer can personalize it in many ways.
The bathrooms flaunt polished marble, heated towel racks, dual-flush toilets, and overflowing whirlpool tubs. The kitchen features state-of-the-art appliances, island and breakfast bar, glass subway tile, and more. The focal point of the residence, however, is the great room, with its glass and stainless steel staircases, recessed lighting, trey ceilings, and 36” diagonal laid honed marble for the floors. All this can be yours for $4,950,000.
Buy it now!

















More Similar Articles Like This
Pure Perfection: Discover the Top White Paint Colors for a Flawless Décor
Amazing Four Seasons Resort Bora Bora
Lawn Care Tips, The Basics For Each Season
Superb Luxury Penthouse in Portomaso, Malta
Lovelli Residence: Mediterranean-Style Dwelling in Bali
5 Ways to Turn Your Yard Into a Fancy Space
These Top Tips Will Help You to Turn Your Garden into the Ultimate Glamping Site!
Gayton Road Residence by Paxton Locher Studio