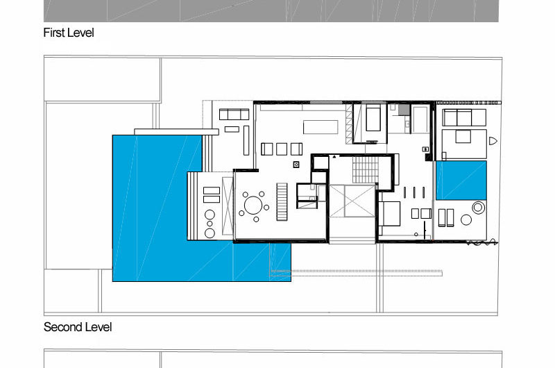
H2 Residence is a contemporary three-apartment building in the suburbs of Athens, designed by 314 Architecture Studio. The three floors of the building each house one apartment with 250 square meters (2,690 square feet) of space. This condominium was built in a very nature-conscious manner, with all construction materials featuring a low-carbon footprint, and all interior materials being natural instead of industrial.
For an efficient bioclimatic design, the building features an atrium that channels light towards the secondary areas of the apartments, and which works as “a funnel exit for warm air energy consumption in the summer months”. An intelligently designed building-water connection ensures natural cooling, thus reducing the need for energy-consuming air conditioning systems.
Each apartment features one master bedroom and two smaller ones, and is tastefully appointed to ooze a sense of luxury and elegance. Sculptures of Gianni Asprason decorate the living rooms for a plus of style. Completing the project is a roof garden, from where the Argosaronic Sea can be admired in all its splendor.


















More Similar Articles Like This
Lovelli Residence: Mediterranean-Style Dwelling in Bali
The Superb Villa Verai on Phuket Island, Thailand
Marvelous Anantara Dhigu Resort
Green Gables Home In Fairfield, Connecticut, United States
70 Shades of Green: Benjamin Moore’s Vibrant Paint Colors
Seamlessly Apartment by the Beach by ZZ Architects
Unique Click Clack Hotel In Bogota, Colombia
Wonderful Yachting Club Villas at Elounda Beach by Davide Macullo Architects