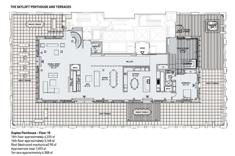
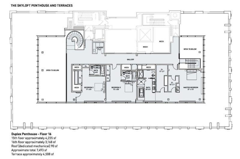
Worth a whopping $45 million, this stunning duplex apartment is situated on the top of an industrial loft building in Tribeca, New York City. It is a 1929 art deco building and it affords sweeping city views. The duplex itself is surrounded by glass walls and a spacious terrace (4,500 sq ft), and it has 7,500 square feet of luxurious living spaces.
The all-glazed exterior of the unit was designed by James Carpenter Design Associates, while the sophisticated interiors were created by Rogers Marvel Architects. The living room boasts 18-foot high ceilings and a striking glass and steel staircase that connects the two levels of the apartment. There are three fireplaces in this lavish home, an eat-in kitchen with bluestone counters plus A-grade appliances, and Lutron lighting system. The 4-bedroom, 4.5-bathroom home comes with a private garage as well.

















More Similar Articles Like This
Heavenly Lily Beach Resort & Spa In Huvahendhoo, Maldives
Santa Barbara Style Home in Paradise Valley, Phoenix
Tips for Choosing the Right Blue Paint Color for Your Dining Room
Spectacular Rooftop Apartment by Innocad
Stunning Sustainable Home in Costa Rica by SPG Architects
Green Gables Home In Fairfield, Connecticut, United States
The Sophisticated Casa Villa Flamingo in Spain
Dreamy Oceanfront Chateau In West Vancouver, Canada