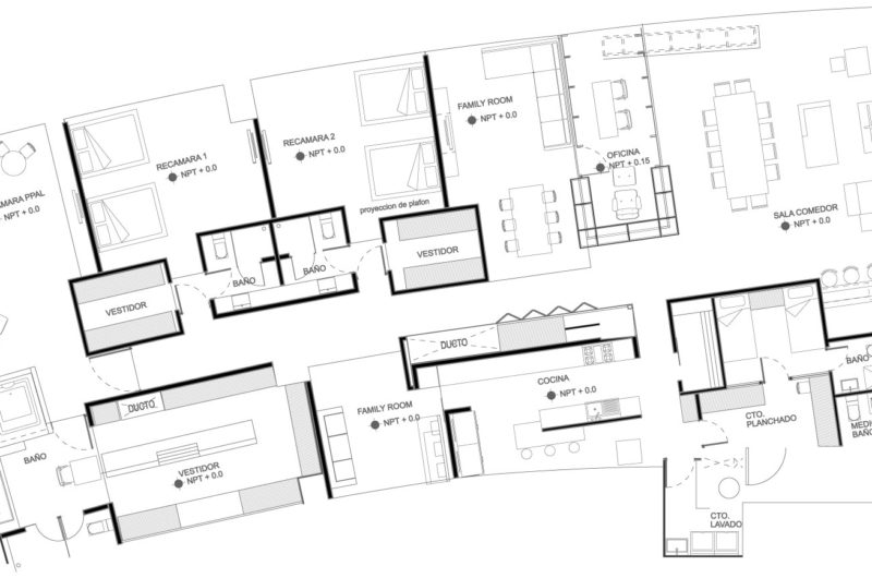
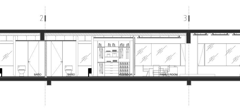
P-901 is a private residence located in Bosque de Las Lomas, in Mexico City, Mexico, which was completed by Craft Arquitectos in 2012. The house covers an area of 2530 square feet and is based on the integration of movement spaces heights, materials and lighting.
There is a perfect mix between the light, plasticity and functionality, which are in perfect balance with the materials used, such as wood, glass, stone and steel.
The marble flooring gives the dwelling a touch of elegance and preciousness, creating in the same time a sophisticated environment.
The wooden details and the diffuse lighting turn this residence into a perfect home, where all the worries and the tension disappear when you enter the front door.

























More Similar Articles Like This
Vibrant Wood Tones: Explore a Spectrum of Spray Paint Colors!
Outstanding Bodrum Houses in Yalikavak, Turkey
Unique Click Clack Hotel In Bogota, Colombia
Beach House CN – A Superb Contemporary Home in Peru
Pure Perfection: Discover the Top White Paint Colors for a Flawless Décor
Exquisite Crossacres Mansion In Surrey, England
6 Garden and Lawn Tips to Get Ready for Spring
Marvelous Anantara Dhigu Resort