As part of a brand new building complex in Vilnius, Lithuania, this modern and inviting apartment was designed for a young family by Normundas Vilkas, and it was completed in 2015. It flaunts just 678 square feet of living space, which is why the architects had to come up with ingenious solutions in order to ensure that the client would be able to enjoy his or her favorite activities on a daily basis.
They implemented an open shelving system made out of lacquered wood, which comprises spaces for books, while a pair of sliding doors hides a working space as well as a computer. The shelving system is also present in the hall, where it offers enough space for a decent sized wardrobe. The TV is inserted into its own niche.
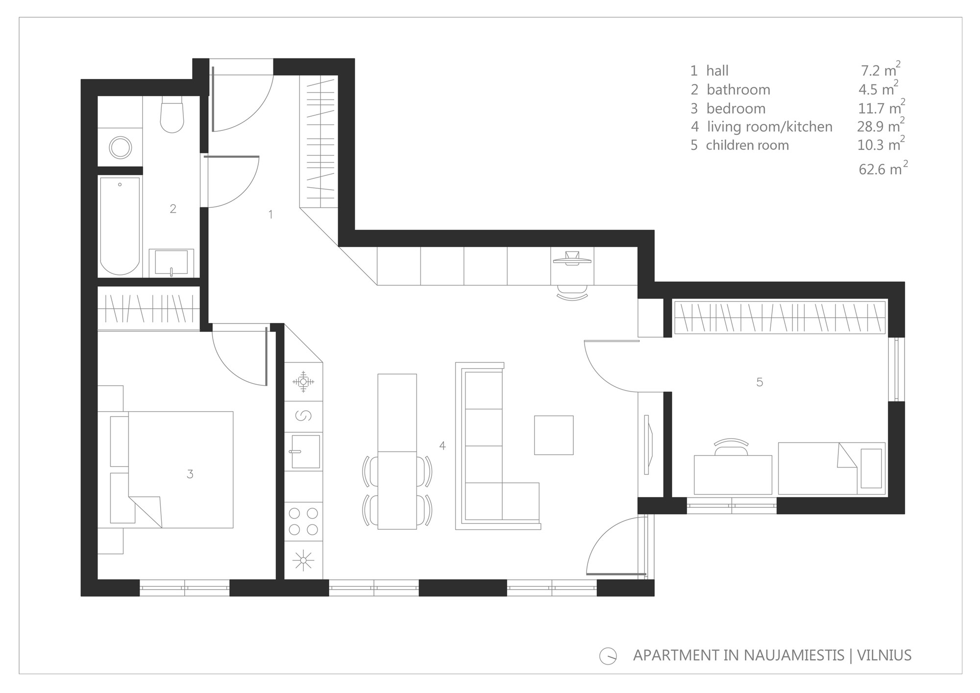
Finally, the living room and the kid’s room are divided by a white laminated door that ensures much needed privacy.
From the architect:
The client invited us to design the apartment for a young family in a newly built housing complex in Vilnius. Due to a relatively small space and low budget, the project has become an inspiring challenge.
We have designed the living room furniture in a way that it would accommodate the needs of the client: the open shelving system of lacquered wood has got enough space for plenty books while the sliding doors hide a working space with a computer. In the hall this shelving system has been transformed into a wardrobe. A niche for a TV was created inside the other piece of furniture of the same style. The white laminated door separates the children room and the living room and allow to keep the coziness and style of the living room.
Outside the windows we see the urban panoramic view that gives a hint of style of the apartment. The rough concrete ceiling has been combined with plywood and framed by the white walls and furniture. This composition has been combined with the whitened oak floor and, as a final touch, with colorful decor details.
Architects: Normundas Vilkas
Location: A. Vivulskio gatvė 41, Vilnius 03114, Lithuania
Area: 63.0 sqm
Project Year: 2015
Photographs: Leonas Garbacauskas










More Similar Articles Like This
Beach House CN – A Superb Contemporary Home in Peru
Tips for Choosing the Right Blue Paint Color for Your Dining Room
Stunning Sustainable Home in Costa Rica by SPG Architects
5 Ways to Turn Your Yard Into a Fancy Space
Vibrant Concrete Floor Paint Colors to Elevate Your Space
Exceptional Coronado Bay Front Estate in California
Dreamy Oceanfront Chateau In West Vancouver, Canada
The Superb Villa Verai on Phuket Island, Thailand