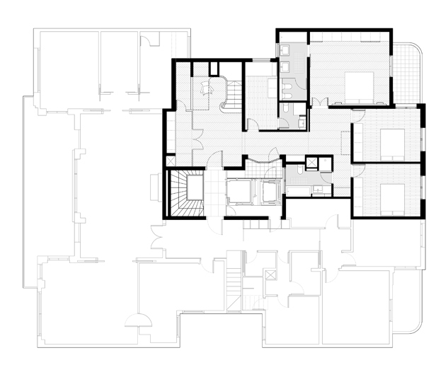
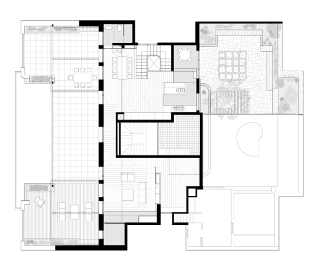
The interior restoration of an Attic Duplex in Barcelona, Spain was made by Cavaa Arquitectes. This project started by dividing a big duplex into two dwellings adapted to a family’s needs. The idea was to achieve recuperation of generous space without losing its previous characteristic of a superior dwelling. There were conserved elements that brought richness to the old space and added new architectural details in order to maintain a good dialogue between the new forms of living and the inheritance.
The home was remodeled in a way that could gather two houses: the first one set on the first floor with a studio taking advantage of the terrace and the second one which is organizedon two floors with the south-orientated terrace on the top floor.
Adopting natural light was a clear purpose from the very beginning that’s why in spaces of more difficult light were created skylights in order to favor an exchange of sensations.
Photos by Filippo Poli


















More Similar Articles Like This
Benjamin Moore Exterior Paint: Vibrant Shades for a Striking Home
Pure Perfection: Discover the Top White Paint Colors for a Flawless Décor
How Seattle Lawn Care Service Deals With Overgrown Lawns
Behr’s Brilliant Blues: 70 Shades of Stunning Paint Colors
Heavenly Lily Beach Resort & Spa In Huvahendhoo, Maldives
Wonderful Yachting Club Villas at Elounda Beach by Davide Macullo Architects
Spectacular Rooftop Apartment by Innocad
Secluded Naladhu Island in Maldives