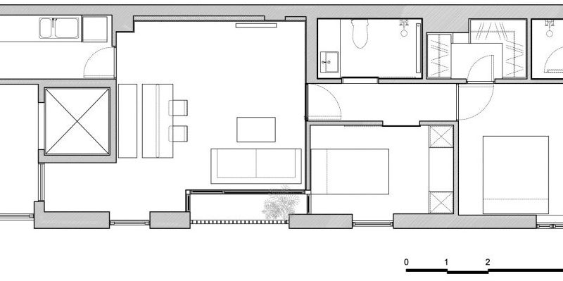
Residence Chang was created on the structure of an older building that was stripped down to the bones in order to create this modern space. The magic was done with the help of ATELIERII who exploited the potential of the place.
The existing construction was added new large windows and also a small balcony in order to extend the interior views.
The residence features modern white spaces such as the new master bedroom, the bath and the dressing area.
The existing common elements are the continuous paving, the walls and the new wooden carpentry, covered in white, which give light to the entire dwelling.
Photos by Ivan Chuang
















More Similar Articles Like This
Benjamin Moore Exterior Paint: Vibrant Shades for a Striking Home
Lovelli Residence: Mediterranean-Style Dwelling in Bali
Different Types Of Foundations For Summer Houses and Garden Buildings
How Seattle Lawn Care Service Deals With Overgrown Lawns
Heavenly Lily Beach Resort & Spa In Huvahendhoo, Maldives
Spectacular Luxury House in Sarasota, Florida by DSDG Inc. Architects
Saguaro Palm Springs by Joie de Vivre
Amazing Four Seasons Resort Bora Bora