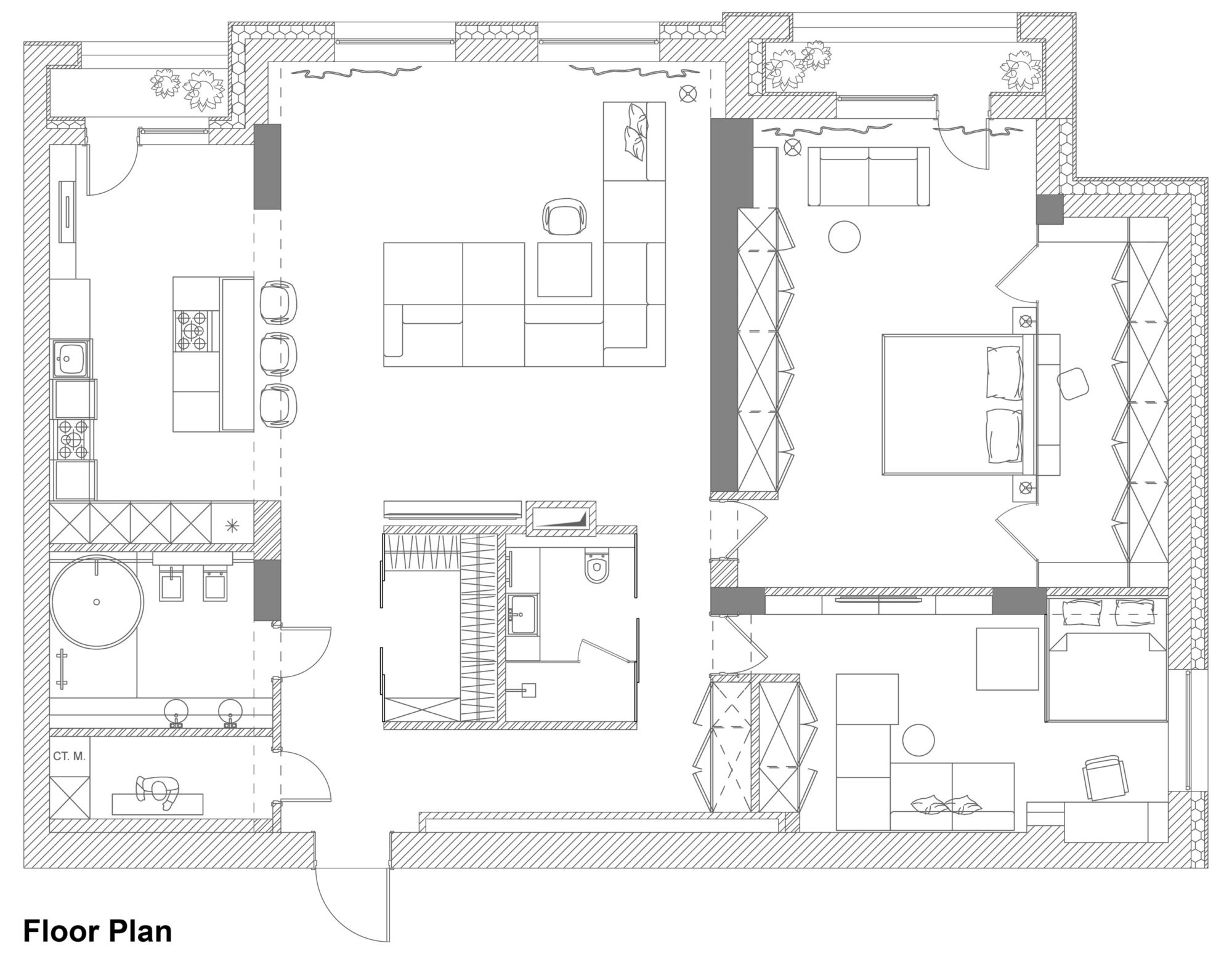
AB1 House is a visualization created by Igor Sirotov Architect, and it represents a modern apartment in Baku, Azerbaijan. Minimalistic and spacious, it features an open plan kitchen, living and dining area as well as a private sitting area that has a comfortable sofa and a flat-screen TV. Its bedroom features a comfortable bed as well as a contemporary fireplace, and it benefits from access to a balcony.
One of the bathrooms flaunts a transparent shower as well as a modern sink and high quality toiletries, while the second bathroom is smaller in scale and includes a bathtub. The renderings depict a perfect home for a single owner, a home that comprises a plethora of entertainment-orientated facilities complemented by comfortable furnishings and minimalistic decorations.













More Similar Articles Like This
The Superb Maradiva Villas Resort & Spa in Mauritius
Outstanding Bodrum Houses in Yalikavak, Turkey
Amazing Four Seasons Resort Bora Bora
Shadowed Depths: Vintage-inspired Paint Colors for Dark Basements
Unique Click Clack Hotel In Bogota, Colombia
Extraordinary Constance Halaveli Maldives Resort
10 Different Types of Blue Paint Colors
Behr’s Brilliant Blues: 70 Shades of Stunning Paint Colors