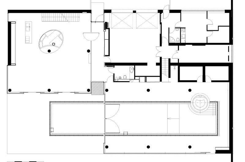
The Water Patio House located in Odessa, Ukraine, was designed by Drozdov & Partners. It features a large swimming pool that connects the space of the ground floor with the terrace and enhances the view towards the sea.
Beautiful views can be accessed from the first floor, especially from the owner’s sleeping room and bathroom.
It’s not too large and not too small, but it’s the perfect home where you’d want your children to grow.
Photos by Andrey Avdeenko























More Similar Articles Like This
The Sophisticated Casa Villa Flamingo in Spain
Plain Geometric Residence Designed by Lidija Dragisic
Beach House CN – A Superb Contemporary Home in Peru
Superb Luxury Penthouse in Portomaso, Malta
Seamlessly Apartment by the Beach by ZZ Architects
6 Garden and Lawn Tips to Get Ready for Spring
Spectacular Rooftop Apartment by Innocad
Santa Barbara Style Home in Paradise Valley, Phoenix