Casa CC is a spectacular 2010 project designed by Longhi Architects and built on Misterio Beach, which is a gated beach community found just 72 miles away from Lima, Peru. The abode itself features a series of built-in geometrical design elements that function as either seating arrangements or table replacements.
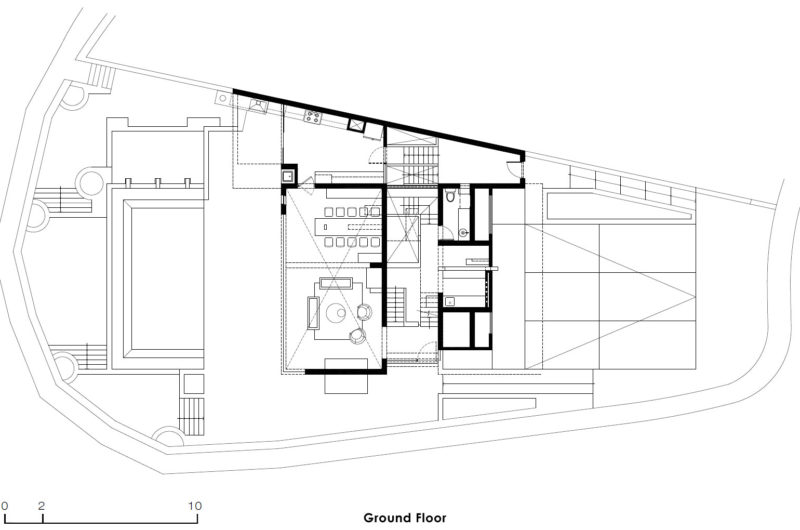
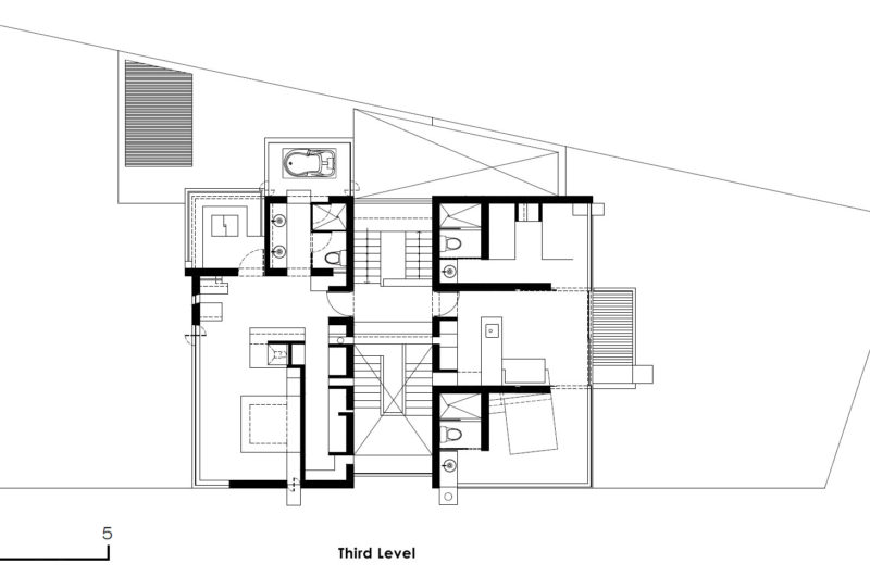
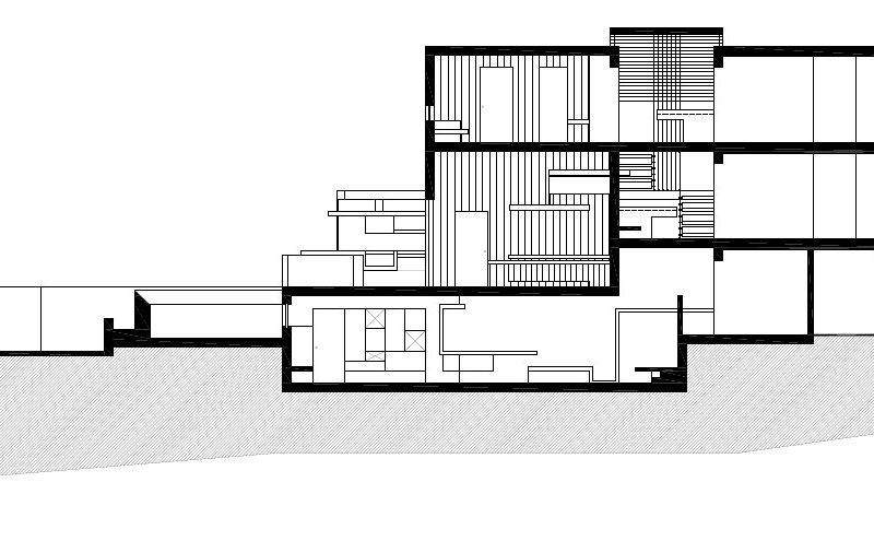
For a plus of privacy, the master bedroom was built at the top of the house while the main living areas are housed within a “concrete block” that can be found on the lower levels. There is also a separate children’s area placed within a separate “glass block” that was designed to meet the needs of the younger family members. These two blocks are linked using a staircase that boasts a series of intricate sculptural elements. These elements are meant to smooth the hard contrasts between the rugged look of the concrete block and the delicate appearance of the glass block through shadow and light effects.































More Similar Articles Like This
Contemporary BO House In Envigado, Antioquia, Colombia
Spectacular Rooftop Apartment by Innocad
The JKC1 House in Bukit Timah, Singapore
Loving Luxury at Mardan Palace Resort, Turkey
Beach House CN – A Superb Contemporary Home in Peru
How Seattle Lawn Care Service Deals With Overgrown Lawns
Marvelous Anantara Dhigu Resort
6 Garden and Lawn Tips to Get Ready for Spring