The St Leon 10 residence designed by SAOTA-Stefan Antoni Olmesdahl Truen Architects is a home created for a family with two kids who wanted to own a house both for intimacy and large get-togethers.
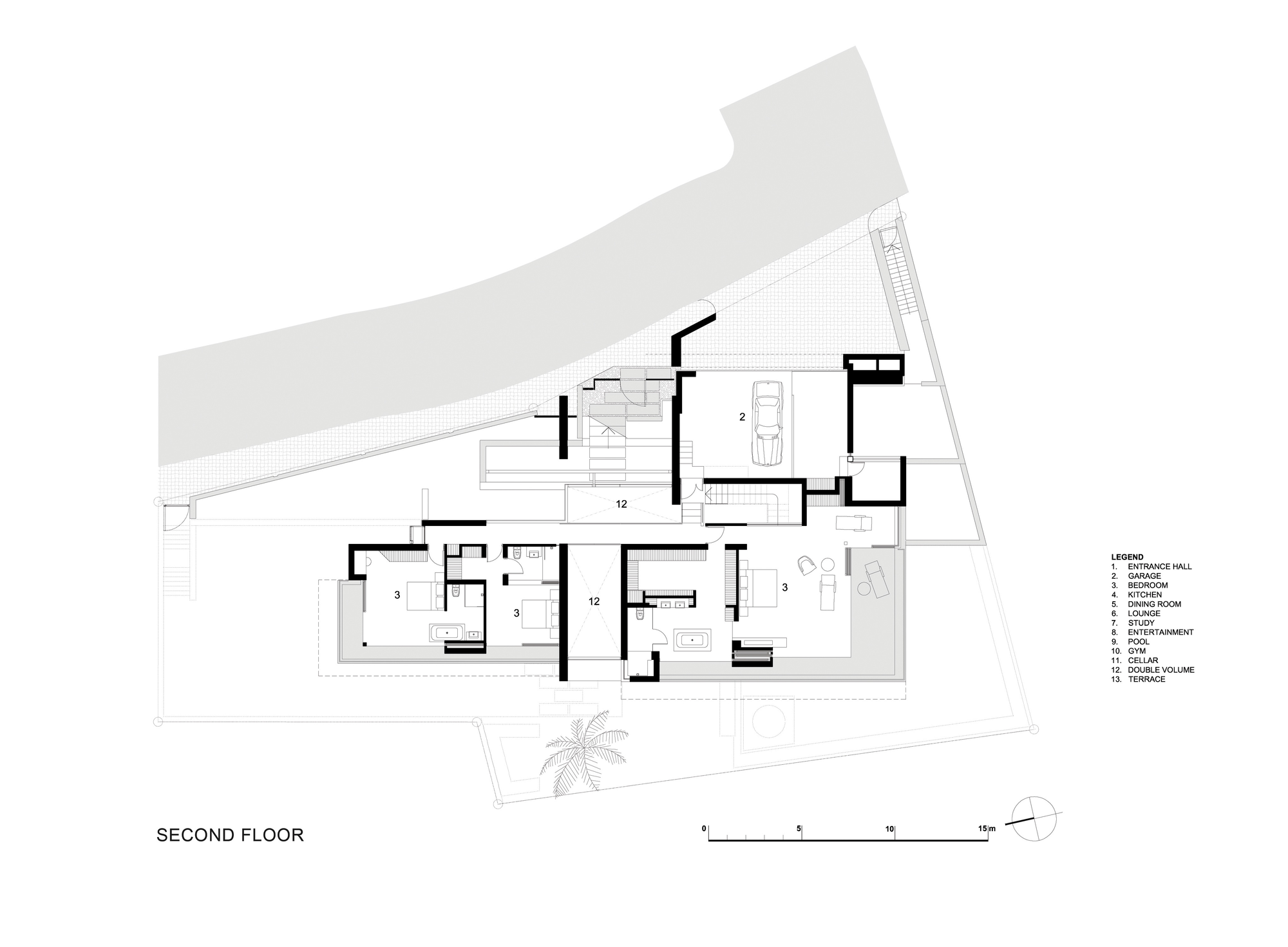
It offers gorgeous views over the 12 Apostle Mountains, Clifton beaches and Robben Island. Because the upper level floats over the first floor, this thing caused the exaggeration over the building’s height. All the rooms are facing the sea view.
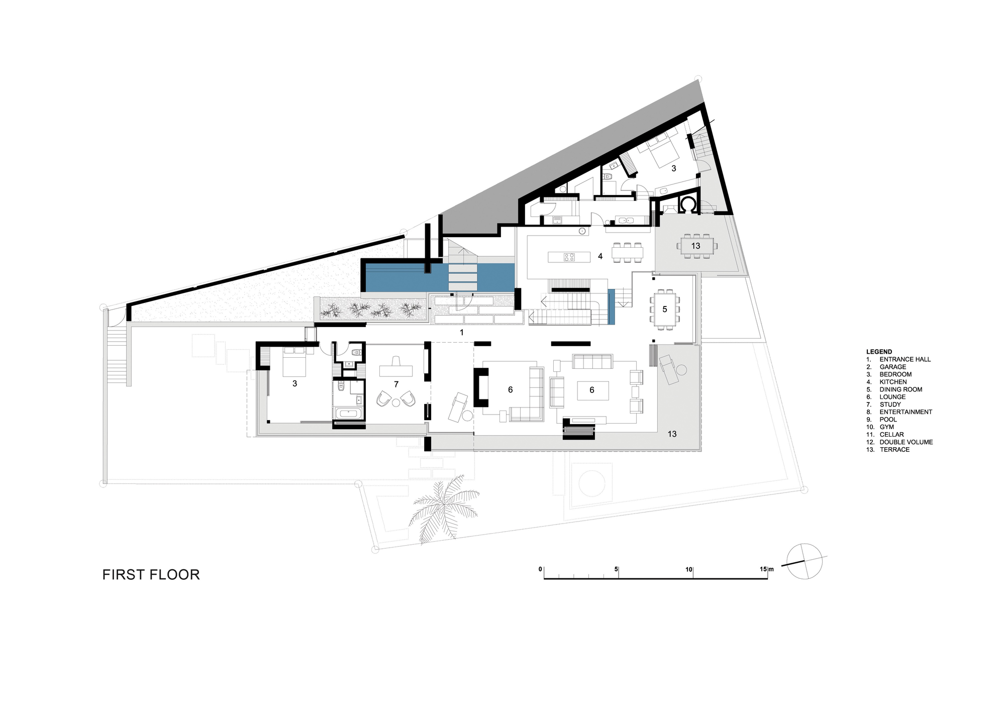
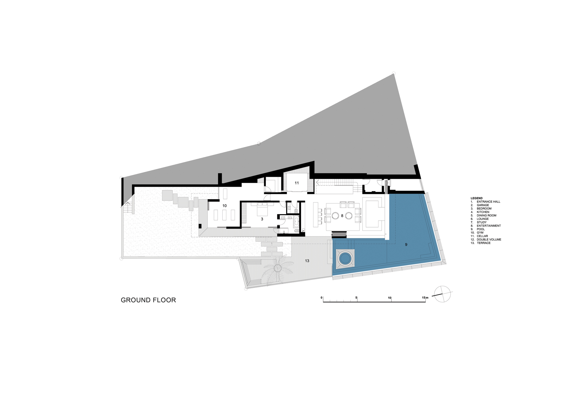
The main living wing of the house includes 2 lounges, a dining room and a kitchen. The ground floor accommodates a large pool entertainment room with a feature sunken lounge, a back-lit onyx bar, a wine cellar, a gym and also a guest room.
Responsible for the interior design were the ANTONI ASSOCIATES who preferred to keep the interiors from the entrance living level to a neutral palette with a subtle play on texture. As a whole, the house is welcoming and offers a favorable environment for a family to grow.




















More Similar Articles Like This
Secluded Naladhu Island in Maldives
Spectacular Rooftop Apartment by Innocad
Pure Perfection: Discover the Top White Paint Colors for a Flawless Décor
Best paint colors for the living room
Shadowed Depths: Vintage-inspired Paint Colors for Dark Basements
Benjamin Moore Exterior Paint: Vibrant Shades for a Striking Home
Tips for Choosing the Right Blue Paint Color for Your Dining Room
70 Shades of Green: Benjamin Moore’s Vibrant Paint Colors