This is the perfect house! For starters, it is a beach house in California and it has no energy costs.
Located in Stinson Beach, this 1400 sq ft home was designed by WA Design. It combines modern and rustic influences and is centered around eco-friendliness. The house is equipped with solar and water energy systems that create a sufficient amount of energy to cover all needs all year long. Moreover, recycled materials were used to build this house, like the fir ceiling.
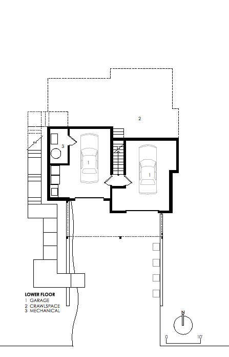
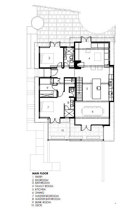
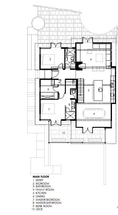
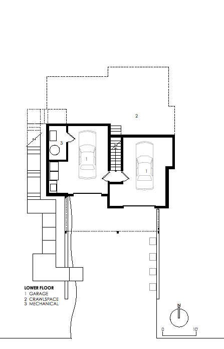
On the first level is the garage with two doors and on the second level there are the bedrooms and a high ceiling social area. The bedrooms are of normal height, but the kitchen, dining and living are double the height having huge glass walls from which one can see the beach and the sky too.
The mixing of different materials with different textures makes the house unique because stone, metal and cement seem to blend together perfectly in this home by the water. Simple elements give it that traditional beach house look, but with those modernistic accents.















More Similar Articles Like This
Lawn Care Tips, The Basics For Each SeasonÂ
Pure Perfection: Discover the Top White Paint Colors for a Flawless Décor
Opulent Mandarin Oriental Hotel in Paris
Tips for Choosing the Right Blue Paint Color for Your Dining Room
Vibrant Concrete Floor Paint Colors to Elevate Your Space
70 Shades of Green: Benjamin Moore’s Vibrant Paint Colors
Stunning Banyan Tree Ungasan Bali in Indonesia
Dreamy Oceanfront Chateau In West Vancouver, Canada