A skilled design and innovative architectural team, Woonpioniers, has developed a remarkable, luminous, and charming wooden cabin in Geithem, Netherlands. This wooden residence is compact and space-efficient, promoting tranquility and reducing clutter. This wooden cabin is referred to as “Indigo Atelierwoning.” It features a contemporary architectural style.
This structure is indeed an effective example of “mass-customized” construction that not only offers a healthy living solution but also accommodates individual lifestyles through its distinctive interior. In crafting this exquisite wooden creation, Woonpioniers has placed significant emphasis on customization. They have also aimed to introduce flexibility within this unique framework by incorporating striking designs that align with the lifestyle of each individual.
The impressive and space-efficient wooden cabin in the Netherlands Forest has been designed through a partnership agreement with Lia. It truly embodies a stunning, beautiful, and elegant aesthetic. The creation of this bright and delightful wooden cabin nestled among the trees was, in fact, Lia’s aspiration, allowing her to appreciate the beauty, serenity, and tranquil environment provided by the surrounding trees.
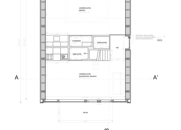
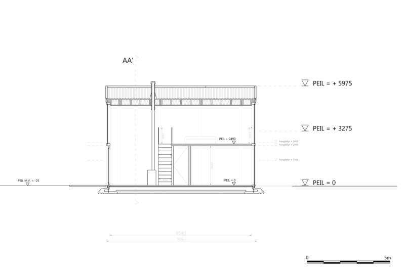
The ground floor features a spacious and well-lit area that enhances its appeal. Additionally, large windows allow for the enjoyment of natural vistas and sunlight. Above this space lies a cozy and inviting bedroom. What distinguishes this Indigo home is its remarkable design, characterized by curved connections between the walls and ceiling. These connections are designed to withstand weather-related elements, contributing to the structure’s strength, safety, and durability. This distinctive design fosters an almost spiritual experience for the artist during moments of awakening and relaxation. All these elements contribute to the home’s beauty, style, and simplicity.
This wooden cabin represents an ideal equilibrium between “mass production” and eco-friendliness. It places considerable focus on customization, taking individual needs into account. It is noteworthy that it can be assembled in just one day, showcasing an impressively rapid construction process!
The striking, luminous, and charming wooden cabin in the Netherlands features a uniquely styled interior layout, as it has minimal external walls. This design allows occupants to experience complete freedom within the interior space.
This characteristic and design enhance the home’s aesthetic appeal and increase its customization potential. The layout is such that many elements, like storage, are centrally located, such as within the stairs. The style of this charming wooden cabin is truly remarkable.
Although it is a compact cabin, it offers ample space. This design allows for the integration of the surroundings into the interior, even though the construction of this wooden cabin does not physically blend the interior and exterior styles.












More Similar Articles Like This
A Superb Italianate Mansion in California, USA
Seamlessly Apartment by the Beach by ZZ Architects
Pure Perfection: Discover the Top White Paint Colors for a Flawless Décor
Shadowed Depths: Vintage-inspired Paint Colors for Dark Basements
Loving Luxury at Mardan Palace Resort, Turkey
Saguaro Palm Springs by Joie de Vivre
Exceptional Coronado Bay Front Estate in California
Benjamin Moore Exterior Paint: Vibrant Shades for a Striking Home