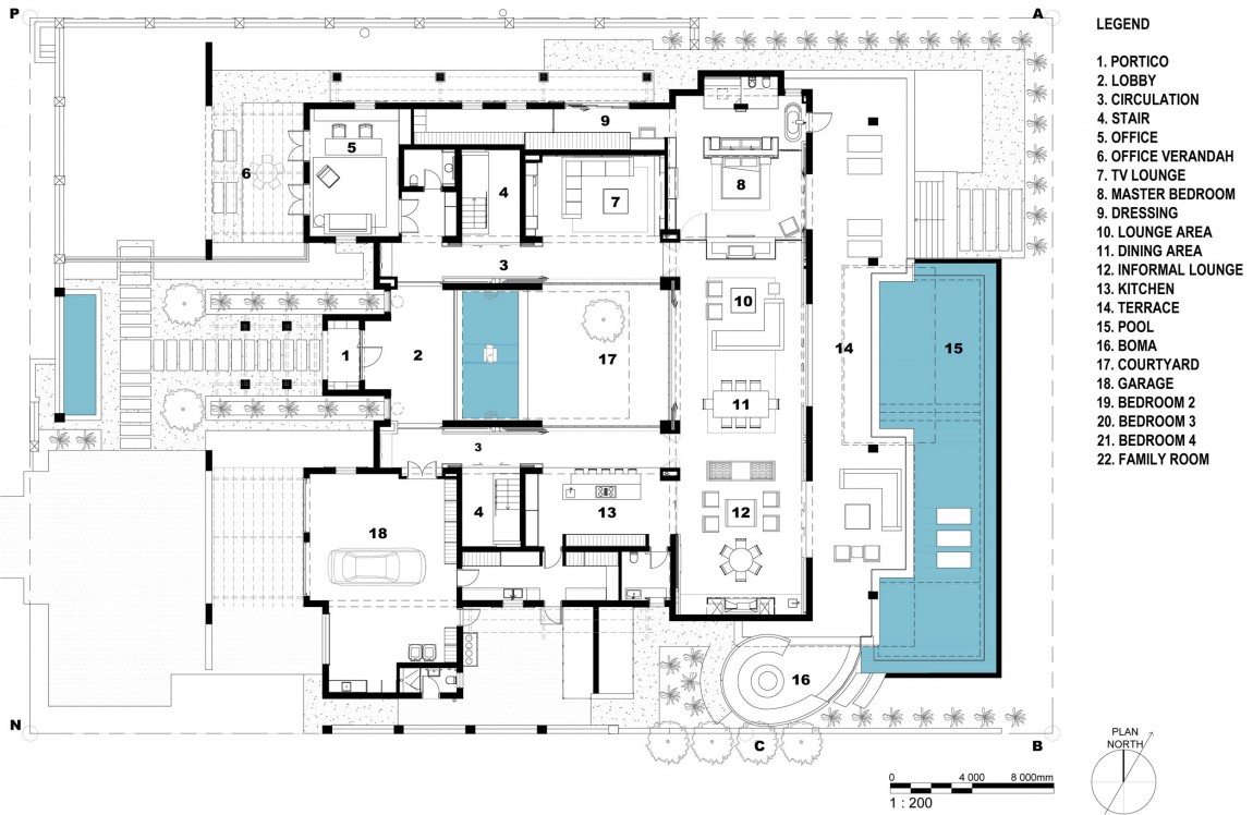
The Winelands Home is located in Stellenbosch, South Africa, and it was sketched out by Antoni Associates. Nestled amidst vineyards and wine farms, the abode offers contemporary living conditions and utmost luxury even though it was not built within an urban environment. The clients wanted to live in a spacious house that would not feel empty yet would be able to accommodate an entire family should the need arise. They also requested that the main living areas would be double volume and that the house would incorporate a central courtyard.
The front of the home comprises the formal dining and lounging areas, an informal lounge, a braai room and a master bedroom with its own ensuite. Since the owners are quite fond of entertaining, the residence features a bespoke wine cellar with a beautiful glass wall and oak timber cabinetry. The wine cellar is temperature controlled and boasts enough space for 400 bottles. Various interior decor elements and furnishings were designed by AA Interiors’ Mark Rielly and Sarika Jacobs. The modern furnishings are complemented by high quality finishes based on textured leather, timber and raw linens. The bespoke furnishings were supplied by OKHA Interiors.
From the architect:
Having completed two separate projects for their children on the Pearl Valley Golf Estate, the owners planned to re-locate from Pretoria to the Cape and approached AA Interiors to design their new home at the De Zalze Winelands and Golf Estate. The Estate is located on the Eastern fringe of the Stellenbosch mountains and is one of South Africa’s premier golfing residential developments, situated among orchards and vineyards on the outskirts of the historic town of Stellenbosch.
The parents loved the original design approach implemented by AA Interiors for their two sons’ projects and so their need was to create a new home where the whole family could gather and where the brief to the design team was to capture a modern farmhouse which incorporated glamorous elements with an emphasis on barefoot luxury and the use of natural materials.
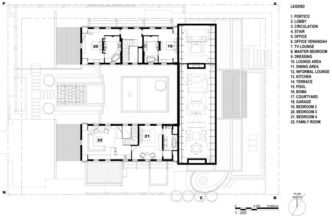
The clients’ brief was to ensure that when they occupied the house on their own that it was not too big and empty, however at the same time it also had to allow for the whole family and grandchildren should they decide to stay over. The decision was made to keep all the entertainment spaces as well as the master bedroom on the ground floor, with three additional guest suites on the first level. As the De Zalze design regulations only permitted a single story, the guests’ suites were accommodated in the roof attics.
Two important criteria for the clients were that the project had to include a central courtyard and that the main living areas were to have double volume. At the front of the plot the concept of a traditional “Cape Dutch Langhuis” with gabled ends was conceptualized. This part of the house was designed to contain the formal lounge & dining, informal lounge & braai room as well as the master bedroom and en-suite, giving all these areas direct access to the front pool terrace with spectacular views to the surrounding vineyards and mountains. In the “Langhuis” open trusses were used to give all the rooms a larger volume. To the rear of the “Langhuis” the two side wings and a linking lobby create a sheltered central courtyard which also visually links the kitchen to the family TV lounge. Identical feature stairs link to the guest bedroom suites located in the roof lofts of these back wings.
The owners of this home love to entertain and wanted the house to reflect their lifestyle. Key features of this include the bespoke wine cellar. Here the design team created a spectacular glass wine wall. The oak timber cabinetry encases frameless glass shelving which can house more than 400 bottles which are perfectly temperature controlled with concealed refrigeration. The wine wall also functions as a visual screen between the formal and informal family spaces. A dramatic double volume stone clad fireplace in the formal lounge is mirrored by a built-in braai in the informal lounge. These areas of the house flow out onto the outdoor entertainment deck and infinity pool. Linked to the terrace is a sunken outdoor boma (a typical South African outdoor enclosure). Here casual seating is arranged around an open fire.
For the interior architecture the design approach by Mark Rielly and Jon Case was to focus on the use of natural organic materials such as timber and stone. Limed oak flooring paired with honey coloured stone walls contrast with black charcoals and chalky white finishes. These tactile materials add a sense of homeliness and warmth to the contemporary architecture. A number of elemental forces are captured in the use of water features and fireplaces.
Werf walls and a pergola covered walkway lead to the front entrance which opens into the courtyard lobby overlooking the reflective pond and greenery. Glass pocket doors create separate entrances and lead into the side wings. Focal features of the entrances are the floating sculpture ledges. Here Angus Taylor sculptures are reflected in the fractured mirror wall cladding. The same fractured pattern is again used in the smokey mirror cladding of the stairways. Limed oak cantilevered treads, timber cladding with white stone ledges and frameless glass balustrading add to the transparency and airiness of these spaces. Clear blown glass globes by David Reade are suspended and reflected in the double volume stairwells adding interest.
A combination of bold and discreet lighting was used to create a “wow” factor and the layering of lighting set various moods. Subtle lighting has been incorporated in all recesses and feature bulkheads to give a warm glow to peripheral edges. Concealed lighting has also been used to highlight and accentuate the organic natural finishes. In the dining room a customized crystal chandelier by Martin Doller is suspended from the ceiling rafters. Other feature lighting includes a custom designed “ring” light by AA Interiors, over the informal braai room and a signature Willow Lamp in the main bedroom.
The interior furniture and décor were designed by Mark Rielly and Sarika Jacobs of AA Interiors. The furniture is modern and complementary to the experience of the home. Tactile finishes including timber, textured leathers and raw linens add a sophisticated sense of understated luxury. The clients’ love for colour has been introduced with injections of bold prints and vibrant fabrics. Bespoke furniture from OKHA Interiors is featured throughout.
Photos by Adam Letch












More Similar Articles Like This
Vibrant Concrete Floor Paint Colors to Elevate Your Space
Dreamy Oceanfront Chateau In West Vancouver, Canada
Benjamin Moore Exterior Paint: Vibrant Shades for a Striking Home
Secluded Naladhu Island in Maldives
Superb Luxury Penthouse in Portomaso, Malta
Santa Barbara Style Home in Paradise Valley, Phoenix
Green Gables Home In Fairfield, Connecticut, United States
Extraordinary Constance Halaveli Maldives Resort