Boasting 740 square feet of living space, the Whitehall Road Residence is located in Flinders, Victoria, Australia, and it was designed by Jon Boucher. It was completed in 2013 amidst a grove of mature gum trees that ensure much needed shade for its swimming pool and deck. One of the most noteworthy design-related aspects of this abode comes in the form of an impressive dry stone wall that runs along its entire length.
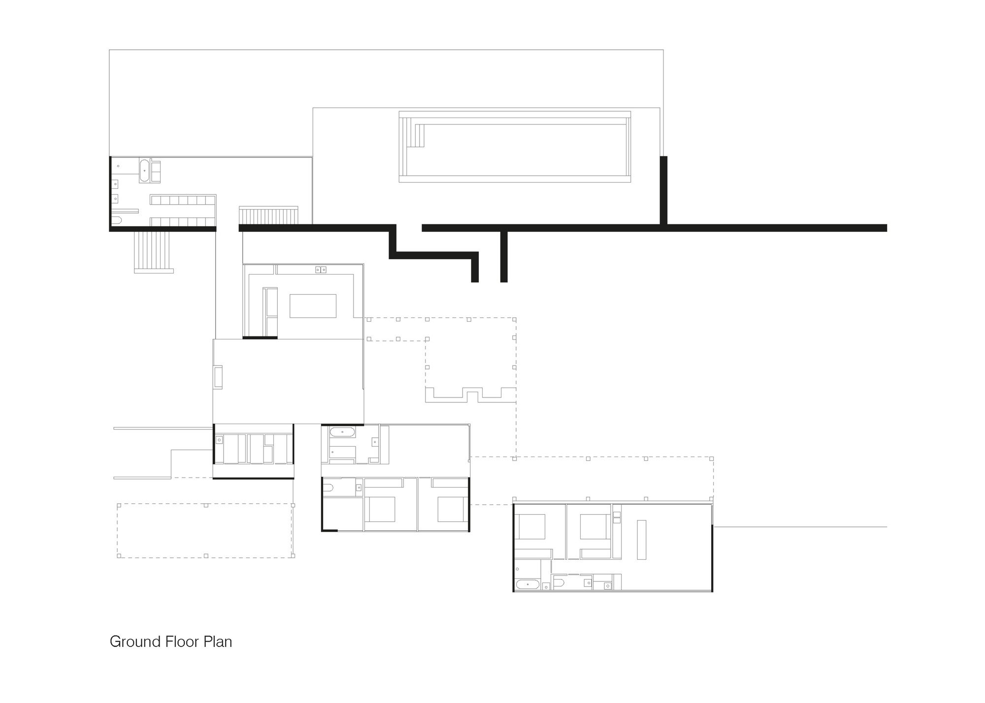
The wall is followed by a series of rectilinear pavilions that comprise various indoor and outdoor spaces. There are also a few interstitial spaces that are emphasized with the help of fully retractable glazing and cane screening. The primary materials used for the Whitehall Road Residence are stone and timber, both of which contrast beautifully with large glass windows.
From the architect:
The house at Whitehall Road is positioned at the crest of a hill, to take advantage of sweeping views of the surrounding landscape. A grove of mature gum trees inform the location of the house; their tall and slender trunks countering the low horizontality of the building and providing shade to the pool and deck areas.
The overriding gesture of the building is the massive drystone wall running the full length of the house. It is cut into the earth, at once anchoring the house and countering the exposure of the site.
Orientated to follow the drystone wall, the house is a series of rectilinear pavilions. Downplaying the scale of the five bedroom house, the pavilions allow for a variety of outdoor, indoor and interstitial spaces. The character of the interstitial spaces is further emphasised through the use of fully retractable glazing and delicate cane screening.
Stone, timber, glass and render are the predominant materials. The heaviness and solidity of the stone and the scale of the timber sections provide a strong contrast to the large expanses of glass which feature throughout. Sightlines are carefully coordinated with the glazing in a sequenced revealing of the vast landscape.
Architects: B.E ARCHITECTURE
Location: Flinders VIC 3929, Australia
Architect In Charge: Jon Boucher
Area: 740.0 ft2
Project Year: 2013
Photographs: Peter Clarke
Design Director : Broderick Ely
Project Architect: Andrew Piva
Builder: Good Constructions














More Similar Articles Like This
Green Gables Home In Fairfield, Connecticut, United States
Dreamy Oceanfront Chateau In West Vancouver, Canada
The JKC1 House in Bukit Timah, Singapore
Lawn Care Tips, The Basics For Each SeasonÂ
Pure Perfection: Discover the Top White Paint Colors for a Flawless Décor
10 Different Types of Blue Paint Colors
Astonishing El Tovar by the Sea
70 Shades of Green: Benjamin Moore’s Vibrant Paint Colors