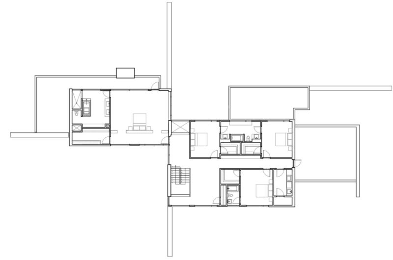
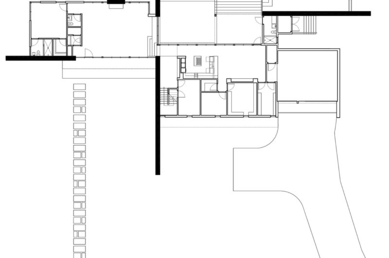
Located in Austin, Texas, this contemporary residence was renovated and extended in 2011 by Specht Harpman. It is known as the West Lake Hills Residence and it now features 5,500 square feet of living spaces, all beautifully decorated in a unique manner.
The site was covered by tall trees and the owners wanted them all protected and cleverly integrated into the design. The new residence is much different from the original one from the 1970s, but there is still a sense of modesty that is kept in the new project, reminding of the original house.

























More Similar Articles Like This
Vibrant Wood Tones: Explore a Spectrum of Spray Paint Colors!
The Superb Maradiva Villas Resort & Spa in Mauritius
Seamlessly Apartment by the Beach by ZZ Architects
Exceptional Coronado Bay Front Estate in California
The Sophisticated Casa Villa Flamingo in Spain
Secluded Naladhu Island in Maldives
Stunning Sustainable Home in Costa Rica by SPG Architects
Behr’s Brilliant Blues: 70 Shades of Stunning Paint Colors