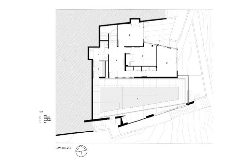
The Seaview House in Wellington, New Zealand, was designed by Parsonson Architects. It is sited near the botanical gardens out to Wellington Harbour, facing east.
It consists of three levels and it accommodates a large family. The structure of the house consists of two main gestures as it follows: outer sections of pitched corrugated iron roofs wrap and frame the building creating in this way a connection with the houses in the neighborhood, and a flat roofed wooden clad element set between the pitched roofs covers the garage, the bedrooms and the pool. 












More Similar Articles Like This
Exquisite Crossacres Mansion In Surrey, England
Spectacular Rooftop Apartment by Innocad
These Top Tips Will Help You to Turn Your Garden into the Ultimate Glamping Site!
Unique Click Clack Hotel In Bogota, Colombia
Beautiful Apartment in Stockholm for $1 Million
The Superb Villa Verai on Phuket Island, Thailand
The Superb Maradiva Villas Resort & Spa in Mauritius
Wonderful Yachting Club Villas at Elounda Beach by Davide Macullo Architects