The owner of this spectacular house in Bali is an Italian jewelry designer and socialite who wanted a unique and fun home where living and entertaining guests would be a real pleasure. The architecture firm chosen to carry out this project was Word of Mouth.
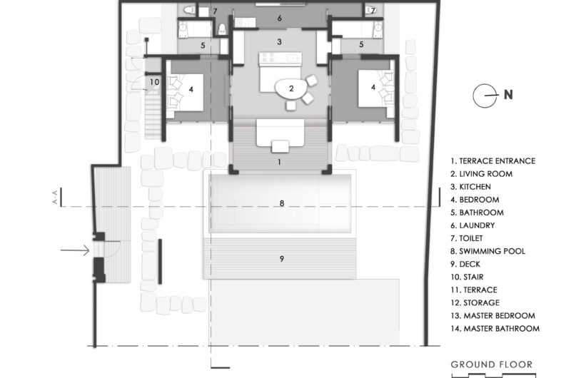
Called the Lovelli Residence, this superb white dwelling is set on a pretty small lot for its size, and offers approx. 3,230 square feet of space. The architects, led by Valentina Audrito, faced the challenge of creating a generous luxury home in a limited space. The solution was to design different spaces whose functionality would harmoniously overlap. For instance, the dining area is also a lounge, each bedroom is also a distinct living space, and the living area is seamlessly connected to the pool area.
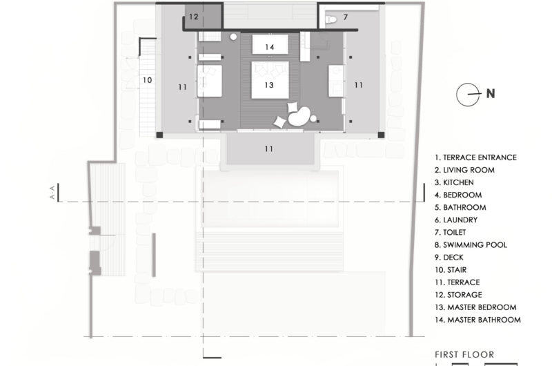
The master bedroom is located on the first floor, flanked by green terraces on three sides. Flooded by natural light and very opened towards the outside space, this area seems even larger than it really is.
Both the owner and Ms. Audrito have an Italian background, and this has led to the easily distinguishable Mediterranean influences in the house’s architecture. The dominant white color of the exterior, the rounded corners (instead of sharp edges), the lovely courtyard, and the flat roof are all Mediterranean-style elements.
Lovelli Residence is located on Bali’s west coast, in a mixed residential and tourist area called Seminyak, north of Kuta and Legian.





















More Similar Articles Like This
Spectacular Rooftop Apartment by Innocad
Tips for Choosing the Right Blue Paint Color for Your Dining Room
Marvelous Anantara Dhigu Resort
6 Garden and Lawn Tips to Get Ready for Spring
Santa Barbara Style Home in Paradise Valley, Phoenix
Dreamy Oceanfront Chateau In West Vancouver, Canada
5 Ways to Turn Your Yard Into a Fancy Space
Outstanding Bodrum Houses in Yalikavak, Turkey