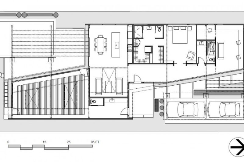
This house was designed by the KRBD studio, for the artist Laurie Frick. It is a 1,600-square-foot single level residence, located in Austin, Texas, USA.
The home includes a bedroom, two bathrooms, a 700-square-foot studio and a pool. The ingeniously designed building comprises a number of 16′ structural steel bays, which are rapped with a metal-clad SIP cowl.The architects used glazing and tigerwood for the entire house, except for the studio, which is covered in integral color stucco. The large hallway also serves as a gallery for Laurie Frick’s art collection.
Laurie Frick’s Residence is a modern residential project located in Austin, Texas, designed by KRBD Studio. The house is situated in a residential neighborhood and features a simple yet elegant design that blends well with the surrounding environment.
The home’s exterior is a mix of materials, including wood, steel, and concrete. The wood accents on the facade add warmth and texture to the design. The house’s main entrance is tucked behind a wall of wood slats, which offers privacy and security to the homeowners.
Inside, the house is open and airy, with a minimalist design that is both functional and stylish. The living room features floor-to-ceiling windows that provide ample natural light and stunning views of the outdoors. The kitchen is sleek and modern, with high-end appliances and plenty of counter space.
The house has a total of three bedrooms and two and a half bathrooms. The master suite is located on the upper level of the home and features a spacious bedroom, a walk-in closet, and a luxurious en-suite bathroom.
One of the most striking features of the house is its use of color. The interior design features a mix of muted earth tones and bold pops of color, creating a lively and dynamic space that is both inviting and energizing.
Overall, Laurie Frick’s Residence is a beautiful example of modern residential design. The house’s simple and elegant design, combined with its functional layout and use of materials, make it a comfortable and welcoming home that is both stylish and livable.























More Similar Articles Like This
Spectacular Luxury House in Sarasota, Florida by DSDG Inc. Architects
Saguaro Palm Springs by Joie de Vivre
Contemporary BO House In Envigado, Antioquia, Colombia
Secluded Naladhu Island in Maldives
Green Gables Home In Fairfield, Connecticut, United States
70 Shades of Green: Benjamin Moore’s Vibrant Paint Colors
Behr’s Brilliant Blues: 70 Shades of Stunning Paint Colors
Tips for Choosing the Right Blue Paint Color for Your Dining Room