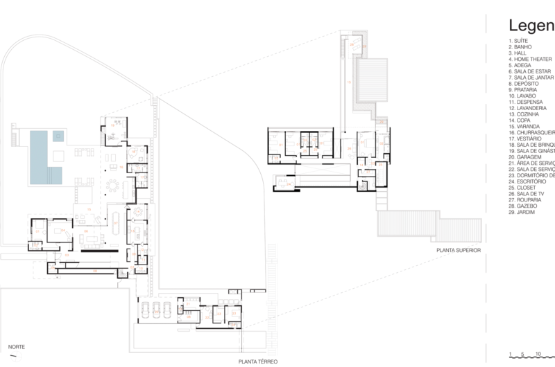
The FG Residence was designed by Reinach Mendoça Arquitectos Associados for a family that spends the seasons in their hometown. It is located in Araraquara, Brazil and it’s an L-shaped home facing the gorgeous garden and the swimming pool.
All the spaces are connected through a lighten distribution hall that permits circulation.
The double large portal of entry is outlined by a volume of metal walls that go as a swing above the garden.
Photos by Nelson Kon








More Similar Articles Like This
Astonishing El Tovar by the Sea
6 Garden and Lawn Tips to Get Ready for Spring
Lovelli Residence: Mediterranean-Style Dwelling in Bali
Behr’s Brilliant Blues: 70 Shades of Stunning Paint Colors
Marvelous Anantara Dhigu Resort
Seamlessly Apartment by the Beach by ZZ Architects
Gorgeous And Spacious Home In Sunset Strip
Wonderful Yachting Club Villas at Elounda Beach by Davide Macullo Architects