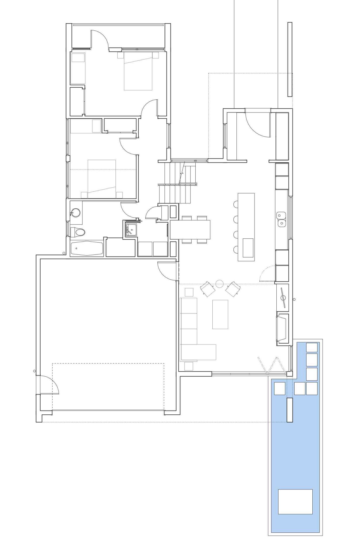
The House on Chilliwack Street in New Westminster, a suburb of Vancouver, Canada was designed by Randy Bens Architect. The original idea of the project consisted in adding a new floor to an existing 1950’s split level residence but they gave it up because of some unforeseen conditions that caused the removal of the old house.
The present construction is all new but it still preserves some hits of the old one. It is very spacious and due to the natural and bright colors used for the walls and for most of the furniture, was created a sense of privacy, tranquility and coziness.




















More Similar Articles Like This
6 Garden and Lawn Tips to Get Ready for Spring
Seamlessly Apartment by the Beach by ZZ Architects
Pure Perfection: Discover the Top White Paint Colors for a Flawless Décor
Gayton Road Residence by Paxton Locher Studio
Stunning Banyan Tree Ungasan Bali in Indonesia
How Seattle Lawn Care Service Deals With Overgrown Lawns
Best paint colors for the living room
Secluded Naladhu Island in Maldives