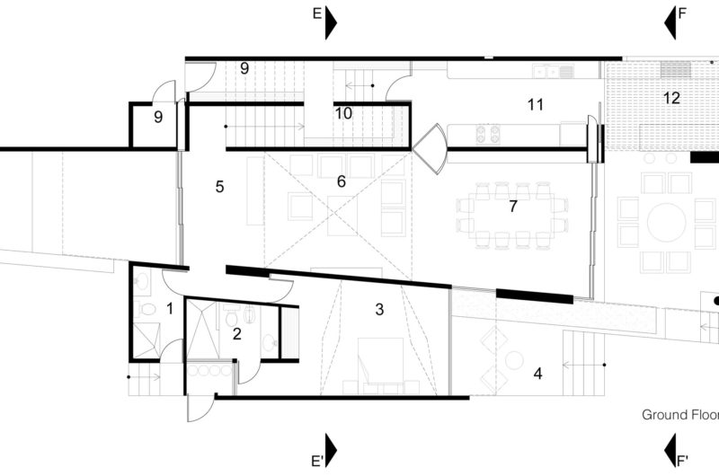
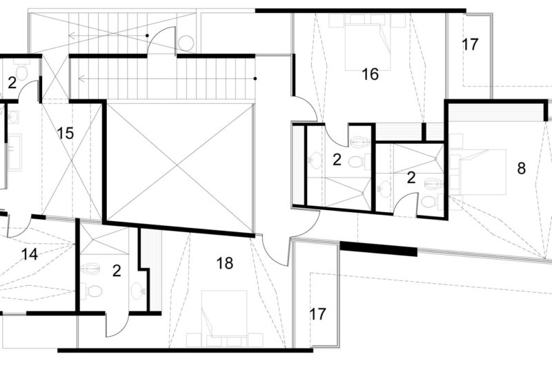
The Tuunich Kanab is a beach house in San Bruno, Yucatan, Mexico that was designed by the Mexican architectural firm Seijo Peon Arquitectos. This contemporary 4,521 square foot modern home was completed in 2010.
It is a summer residence specially created for a three generation extended family. All the social spaces and the bedrooms have a relevant link with the ocean, breaking, in this way, the virtual barriers between interior and exterior.
The master bedroom plays a special role in the composition due to the fact that is located above the social area and the terrace, projecting towards the sea. Because the client has an affinity of sleeping in hammocks, a special area was arranged on the terrace.
Surrounded by tropical greenery, the house has its own character being friendly with the environment.

















More Similar Articles Like This
Santa Barbara Style Home in Paradise Valley, Phoenix
Extraordinary Constance Halaveli Maldives Resort
Contemporary BO House In Envigado, Antioquia, Colombia
Stunning Sustainable Home in Costa Rica by SPG Architects
Benjamin Moore Exterior Paint: Vibrant Shades for a Striking Home
Green Gables Home In Fairfield, Connecticut, United States
Lovelli Residence: Mediterranean-Style Dwelling in Bali
The Superb Villa Verai on Phuket Island, Thailand