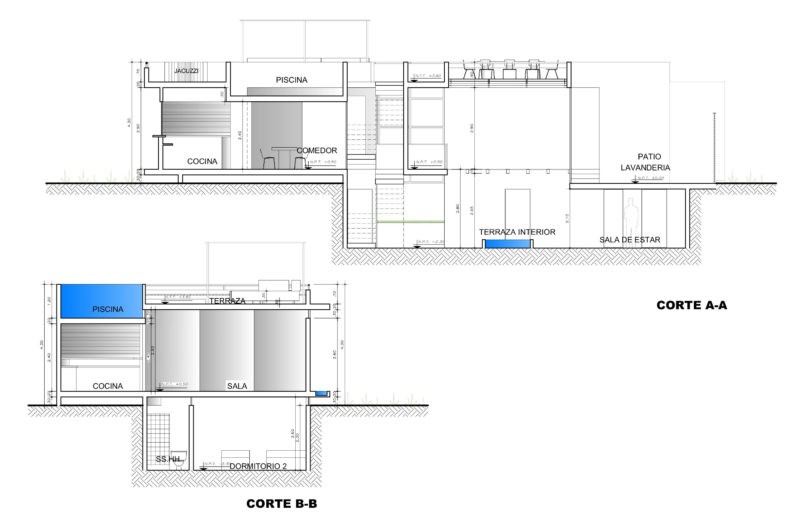
Casa V2 is a remarkable project of Gomez de la Torre $ Guerrero Arquitectos, a Peruvian architecture studio. It is a lovely contemporary residence with 3,032 square feet of living spaces, all very nicely fitted in a minimalist style. You can find it in Playa Las Gaviotas, CaƱete, Peru.
Contemporary Casa V2 in Playa Las Gaviotas, Peru
Luke Martin
I am Luke Martin, a writer who loves homes. My words are about creating comfy and nice living spaces. Let's explore ideas for decorating and making homes cozy together. Join me on this journey to make your house a special place to be.






















More Similar Articles Like This
70 Shades of Green: Benjamin Mooreās Vibrant Paint Colors
Green Gables Home In Fairfield, Connecticut, United States
Tips for Choosing the Right Blue Paint Color for Your Dining Room
Beach House CN ā A Superb Contemporary Home in Peru
Boracay Resort & Spa in the Fascinating Philippines
Shadowed Depths: Vintage-inspired Paint Colors for Dark Basements
The Sophisticated Casa Villa Flamingo in Spain
Beautiful Apartment in Stockholm for $1 Million