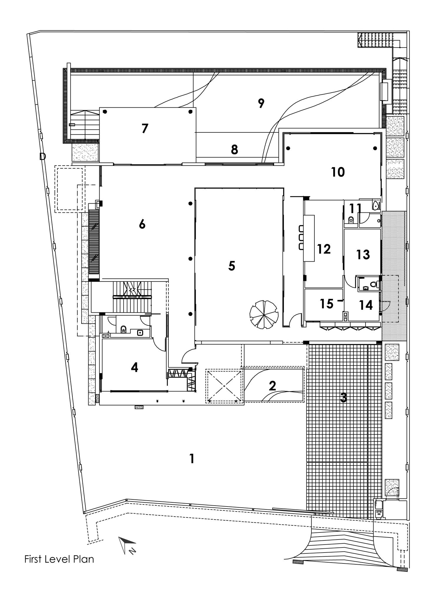
Park + Associates’ most recent project refers to a 749-sq-m house that encourages social activities, interaction and visual connectivity. Initially, the residence was divided into separate activity zones.
However, a certain level of surveillance and inquisitiveness was desired for this household. The planar walls that physically separated the entire space into zones was “opened” with punctuation of strip voids through different walls.
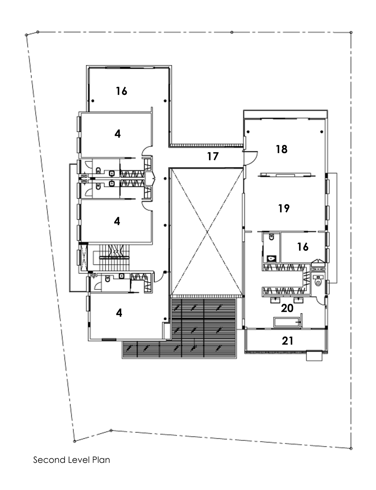
The house has two wings and the flow of internal and external living areas create a social perimeter. Full height sliding doors separate the internal space from the courtyard garden. The second level is made of personal areas. It includes one wing for the children and another for the parents.
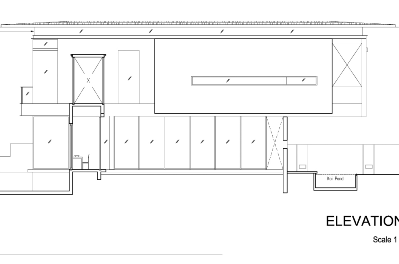
The main house separates the courtyard from the front garden. A strip void on the wall at eye level creates a looking area towards the front of the house. The feeling of open space is also given by the incorporation in the landscape of a spa pool and an infinity pool perched on a slope.
The living and dining rooms are found on the rear half of the house. On the opposite position the kitchen is found. The dining room is placed at the end of an open corridor that passes the courtyard. The entire house is designed to provide visual continuity.
The children’s wing is connected to the living room by a flight of stairs. One of the main areas of the house is the study that extends beyond the wing and encourages children to spend more time there than in their three bedrooms. A window-like wall separates this space from the courtyard creating a connection with the sky and the outdoor space.
One of the most impressive touches is a sheltered bridge that opens up to a view. The retreated master bedroom includes an attached study, a walk-in wardrobe, and a balcony. For the parents’ zones walls were put up to allow intimacy. However, the parents desired to have a constant eye on the children, so the walls have horizontal voids to facilitate communication.
Attention to the details was one of the key points in this project. For example, the balcony is protected from the direct evening sun by Aluminum screens.




















More Similar Articles Like This
Spectacular Luxury House in Sarasota, Florida by DSDG Inc. Architects
Beautiful Apartment in Stockholm for $1 Million
Unique Click Clack Hotel In Bogota, Colombia
Gorgeous And Spacious Home In Sunset Strip
These Top Tips Will Help You to Turn Your Garden into the Ultimate Glamping Site!
The Sophisticated Casa Villa Flamingo in Spain
Shadowed Depths: Vintage-inspired Paint Colors for Dark Basements
Loving Luxury at Mardan Palace Resort, Turkey