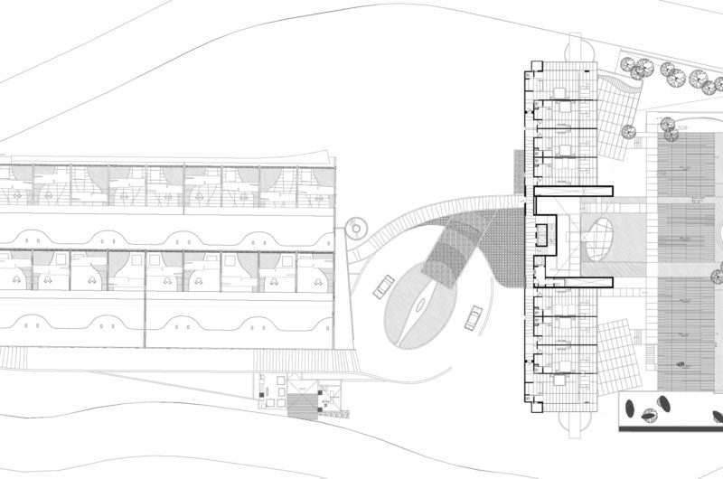
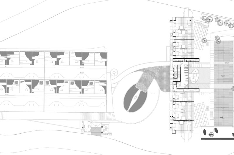
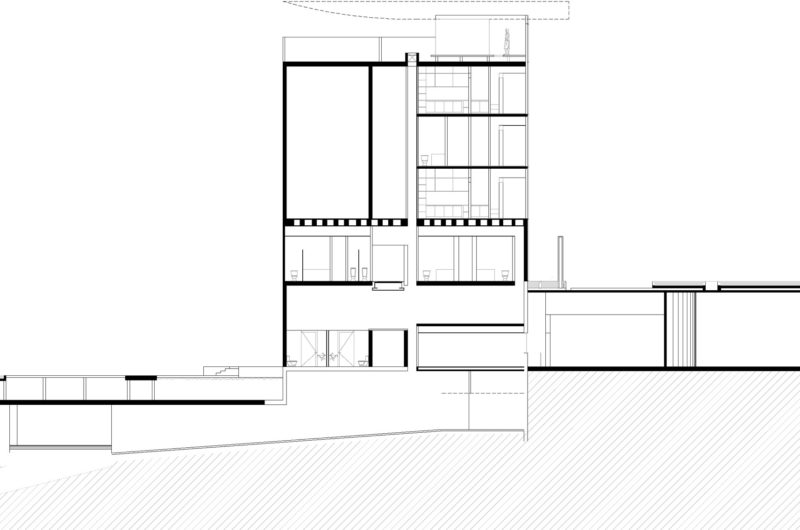
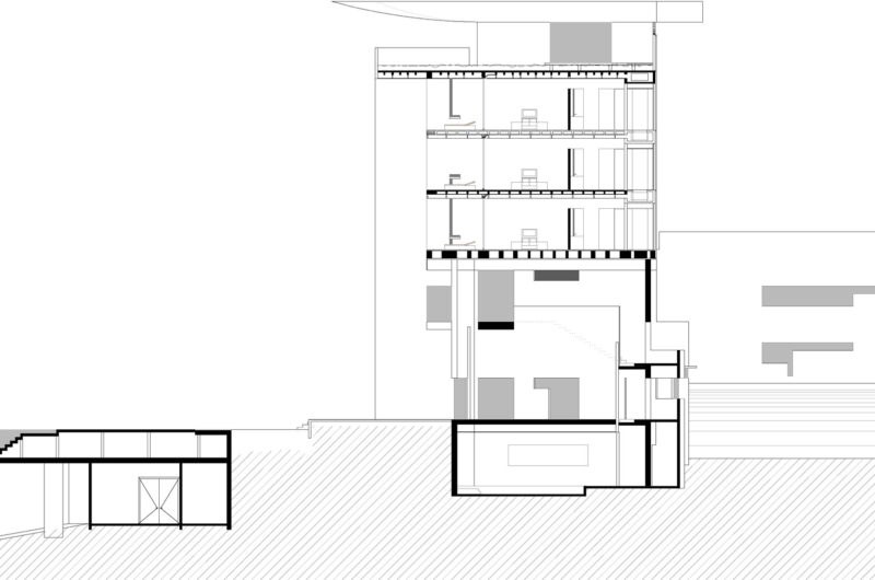
Taller Aragones completed the Encanto Hotel in 2012 and the result is spectacular. Located in Acapulco, Mexic, this contemporary wonder was created with great attention and dedication. By only looking at these pictures you would have never guessed that this incredible construction was created with little resources, economic materials and local labor. Its spaces are very intimate and offer the guests all the comfort and tranquility they need.
Fine architecture is transposed into such architectural masterpieces. Here’s the living proof that high-quality leaves a trace in time.
Photos by Joe Fletcher


















































More Similar Articles Like This
Exploring the New World of Luxury Hoteling
Plain Geometric Residence Designed by Lidija Dragisic
Opulent Mandarin Oriental Hotel in Paris
The JKC1 House in Bukit Timah, Singapore
Vibrant Concrete Floor Paint Colors to Elevate Your Space
Dreamy Oceanfront Chateau In West Vancouver, Canada
Unique Click Clack Hotel In Bogota, Colombia
Lawn Care Tips, The Basics For Each Season