One of the most impressive abodes in Kuala Lumpur, Malaysia is the Tropical Box House, which was designed by WHBC Architects. It features 7,500 square feet of living space and flaunts an inward-looking design that shelters the main living areas from the harsh tropical sun and the abundant rain. However, the residence also blends nicely with its surroundings.
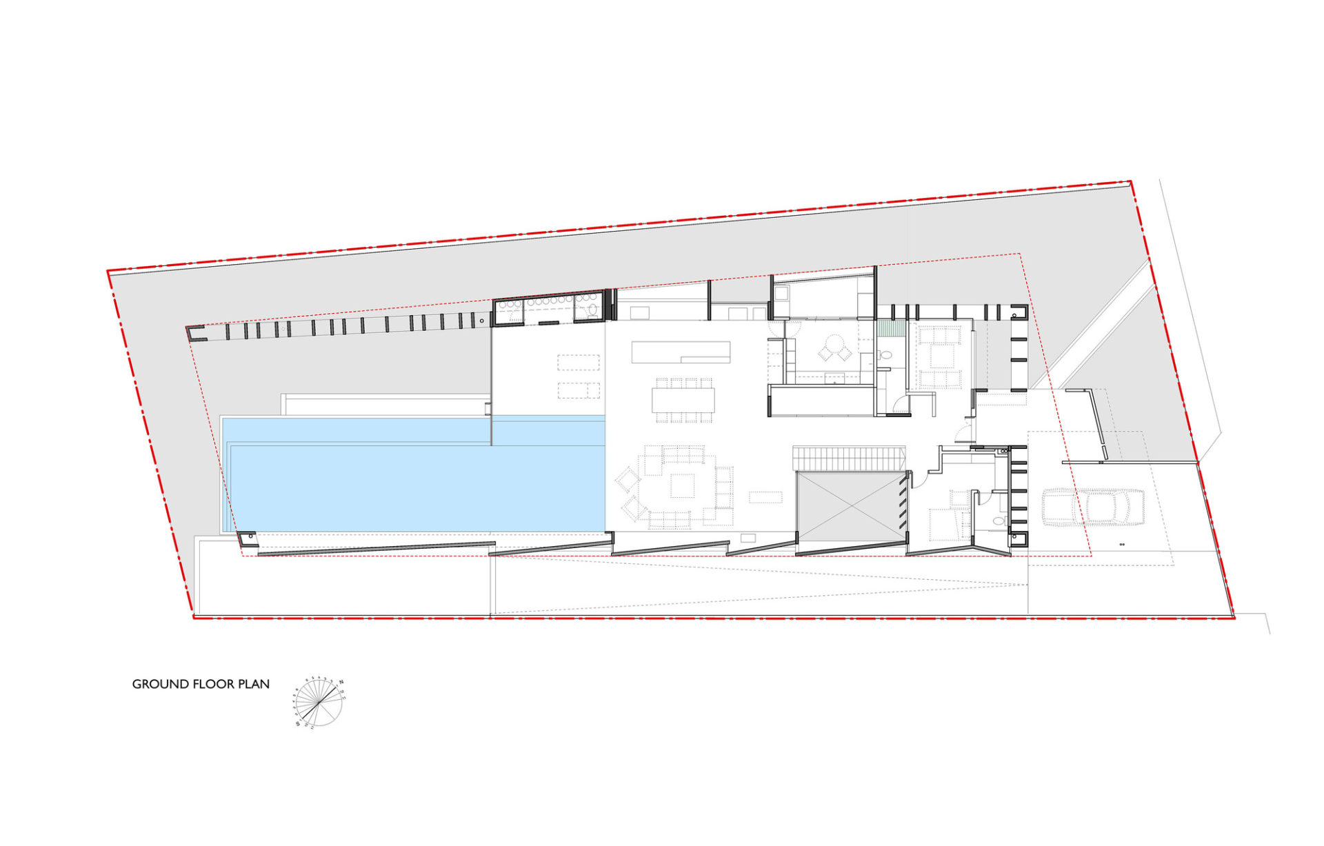
A concrete egg-crate structure surrounds the house and allows natural light to enter its spaces while limiting excess heat. The structure includes numerous perforations that allows some of the outdoor overgrowth to seep into the main volume thus blurring the limits between the indoors and outdoors. The egg-crate volume was created using in-situ concrete, which helps filter the rays of the sun. The primary living areas such as the dining area, the living room and the swimming pool are inserted at the entry level, while the bedrooms are located at the upper floor. On the lower ground, the architects implemented the service areas as well as a garage. The upper floor windows boast special designs that offer exceptional views of the nearby trees.
From the architect:
A concrete tropical box that embraces the lush jungle. The project was envisioned as an inward looking abode that safeguards its interior from the tropical sun and rain while at the same time, embraces the dense, natural floral enclave that the house sits within.
Set in the tropics, we designed a concrete egg-crate structure that envelopes the house to keep the heat out, but draw daylight in to create comfortable spaces within. The perforated nature of this envelope allows the existing overgrowth to grow into the volume of the house, thus softening the boundary of inside and outside.
The egg-crate structure is built of in-situ concrete as a sun-filtering device at the depth of 900mm. The structure naturally allows daylight to filter through but resists radiation. Concrete fins of 150mm thickness reinforce the structure by framing openings of various sizes at a controlled rhythm. This further facilitates the regulation of light intensity inside.
From the entry level, the existing site slopes downwards to the back. The design takes advantage of the sloping terrain to keep the dampness and humidity out within a tropical environment. The spaces are arranged to keep most parts of the house raised from the ground. This elevates the house to sit among the canopy of trees.
The main spaces- living, dining and the pool are positioned at the entry level; the bedrooms are placed on the upper floor; finally, a garage and service area sits on the lower ground. This ensured that dampness and pest is kept away, keeping the house airy and dry.
The main approach to the house is via a bridge flanked by multiple mature Albizia trees. From the entrance, a relatively narrow walkway, adjacent to a stairway and an internal courtyard, leads to the open living area.
Upon arrival, the suppressed journey opens outwards to a double volume deck reflected upon a pool. The pool and the adjoining garden are enclosed within the volume of this egg-crate structure. These spaces are completely surrounded by green foliage as they hover close to the tropical canopy.
Looking beyond the pool and the garden, one is greeted with a clear and extended panoramic view of the forest. On upper floors, windows are specially designed to capture views of big beautiful trees. A seemingly heavy concrete box, it touches the ground lightly, places itself among the trees and encourages the enduring landscape to grow within it.
Architects: WHBC Architects
Location: Damansara Heights, 50490 Kuala Lumpur, Wilayah Persekutuan Kuala Lumpur, Malaysia
Area: 7500.0 ft2
Photographs: Kent Soh
Engineer: Projurutek Sdn Bhd
Builders: CHB Construction, Ming Seng Construction
Land area: 10500 sqft












More Similar Articles Like This
Green Gables Home In Fairfield, Connecticut, United States
Best paint colors for the living room
Extraordinary Constance Halaveli Maldives Resort
Shadowed Depths: Vintage-inspired Paint Colors for Dark Basements
Loving Luxury at Mardan Palace Resort, Turkey
A Superb Italianate Mansion in California, USA
These Top Tips Will Help You to Turn Your Garden into the Ultimate Glamping Site!
Lawn Care Tips, The Basics For Each SeasonÂ