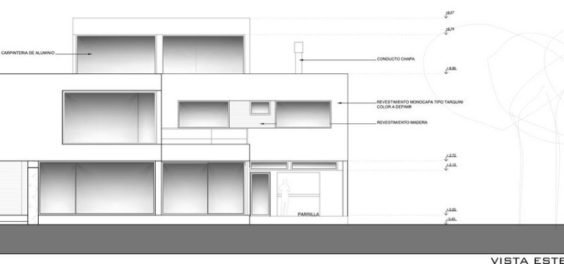
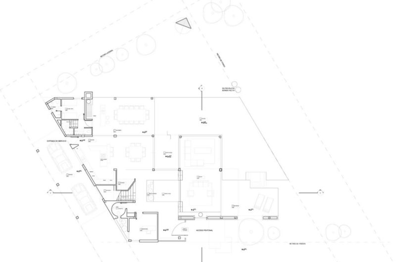
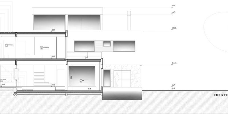
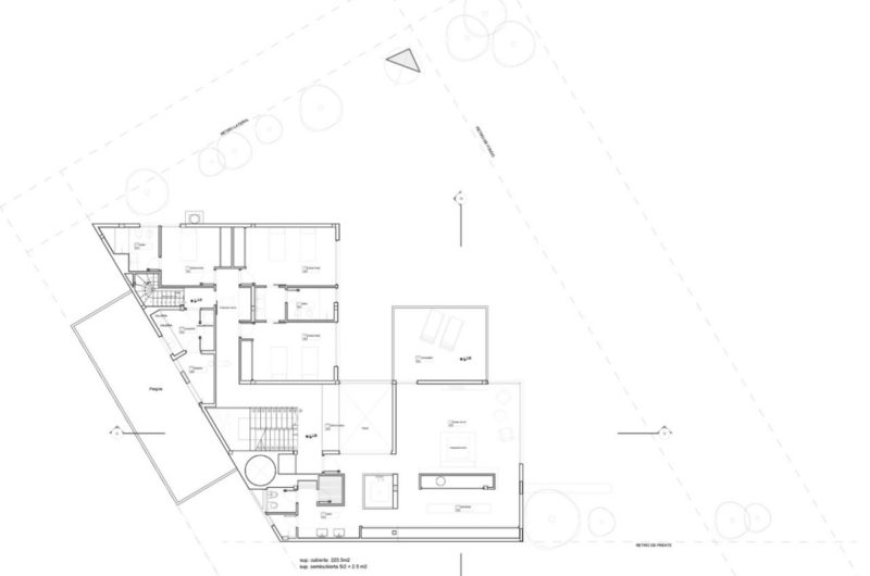
Carrara House was completed in 2010 by Andres Remy Arquitectos. Situated in Pilar, Argentina, the 7,100-square-foot residence impresses with its white exterior, and the white Carrara marble that dominates the interior. This is what gives the entire building an elegant and sophisticated feel.
Photography by Alejandro Peral


































More Similar Articles Like This
Stunning Sustainable Home in Costa Rica by SPG Architects
These Top Tips Will Help You to Turn Your Garden into the Ultimate Glamping Site!
Astonishing El Tovar by the Sea
Heavenly Lily Beach Resort & Spa In Huvahendhoo, Maldives
Extraordinary Constance Halaveli Maldives Resort
Secluded Naladhu Island in Maldives
Amazing Four Seasons Resort Bora Bora
The Sophisticated Casa Villa Flamingo in Spain