Situated in the Silicon Valley, California, USA, OZ House is a contemporary residence designed by Swatt Miers Architects. Built on a 2.8-acre site, and surrounded by a beautiful landscape, the OZ House is the perfect home for a young family with two children.
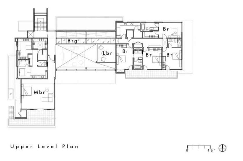
They wanted a house with a casual feel, and indoor-outdoor connections. The architects chose a simple L-shaped plan, with two wings, each with its own purpose. The east wing includes the family room and kitchen on the ground floor, and the children’s bedrooms at the upper floor, while the south wing features a guest suite, an office and a media room on the ground floor, and the master suite on the second floor. The two wings are connected by a living/dining area, with large floor-to-ceiling windows that connect the inside with the outside.
The exterior east and south wings are painted in white, which contrasts with the central mahogany clad of the central room and the mahogany boards of the roof. One can access the pool and courtyard directly from the living/dining area, kitchen, family rooms and media room. The courtyard was designed for family-friends time that is why it has a motor court, terraces, a BBQ patio, and lawn play areas. A beautiful heritage old tree can be admired from the main living spaces, creating a relaxing feel.
Photos by: Tim Griffith
























More Similar Articles Like This
How Seattle Lawn Care Service Deals With Overgrown Lawns
Vibrant Wood Tones: Explore a Spectrum of Spray Paint Colors!
Vibrant Concrete Floor Paint Colors to Elevate Your Space
Contemporary BO House In Envigado, Antioquia, Colombia
Outstanding Bodrum Houses in Yalikavak, Turkey
Stunning Banyan Tree Ungasan Bali in Indonesia
Unique Click Clack Hotel In Bogota, Colombia
Different Types Of Foundations For Summer Houses and Garden Buildings