Warehouse conversions often prove to be awesome ideas for modern living. Take this great three-bedroom, two-bath dwelling in Abbotsford, Melbourne, Australia. Contemporary living mixes wonderfully with original warehouse elements for a unique and very inviting ambiance.
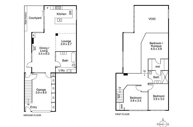
On the lower floor there is a bedroom, a large bathroom that also includes a laundry, a garage, and a lovely courtyard. On the first floor one can find the public spaces: the living, area, the kitchen and the dining area, plus an entertainer’s courtyard. Finally, the upper floor houses the master bedroom with walk-in wardrobe and en-suite bath, a third bedroom, and an extensive deck and balcony.
Some of its most alluring features are the New York-style windows, original enamel factory lights, intercom/automatic entry on each floor, designer fixtures, European appliances, exposed timber Oregon pillars, herringbone warehouse ceilings, hydronic heating, and more.










More Similar Articles Like This
Marvelous Anantara Dhigu Resort
Spectacular Rooftop Apartment by Innocad
Astonishing El Tovar by the Sea
70 Shades of Green: Benjamin Moore’s Vibrant Paint Colors
Seamlessly Apartment by the Beach by ZZ Architects
Stunning Sustainable Home in Costa Rica by SPG Architects
Wonderful Yachting Club Villas at Elounda Beach by Davide Macullo Architects
Gorgeous And Spacious Home In Sunset Strip