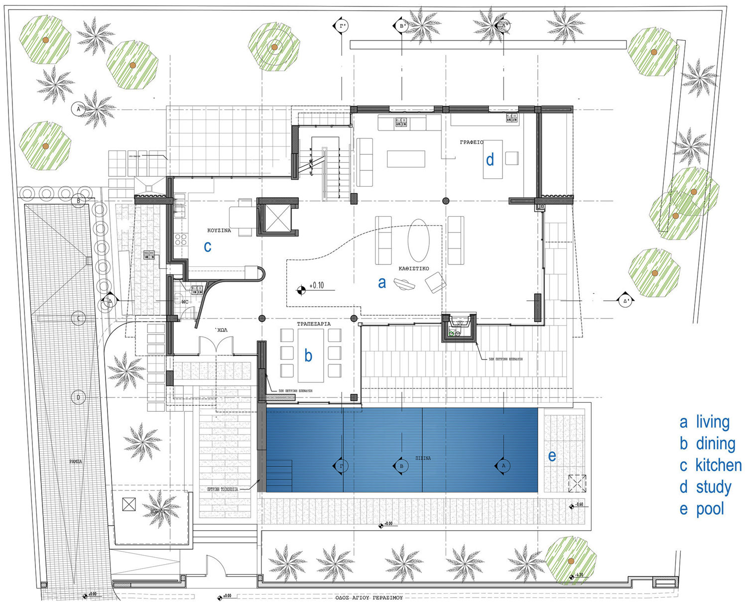
This superb residence located in Ekali, Athens, Greece is a project completed in 2010 by the Architect ThanosAthanasopoulos. Its unique and simple design gives one the sensation of an airy space and combined with worm colors, even the most stressed minds can be relaxed. The architect has put great emphasis on the quality of materials and for that he used tile, white plaster, marble, and stone according to his own artistic vision.
This estate was designed to be available for a family, offering plenty of space and providing a wonderful outdoor pool and also a stunning front yard garden. It’s not a surprising home but it’s simple and gives you all the comfort you need.
Photos by H. Louizidis

















More Similar Articles Like This
Wonderful Yachting Club Villas at Elounda Beach by Davide Macullo Architects
Tips for Choosing the Right Blue Paint Color for Your Dining Room
10 Different Types of Blue Paint Colors
Unique Click Clack Hotel In Bogota, Colombia
Seamlessly Apartment by the Beach by ZZ Architects
A Superb Italianate Mansion in California, USA
Lawn Care Tips, The Basics For Each SeasonÂ
Stunning Sustainable Home in Costa Rica by SPG Architects