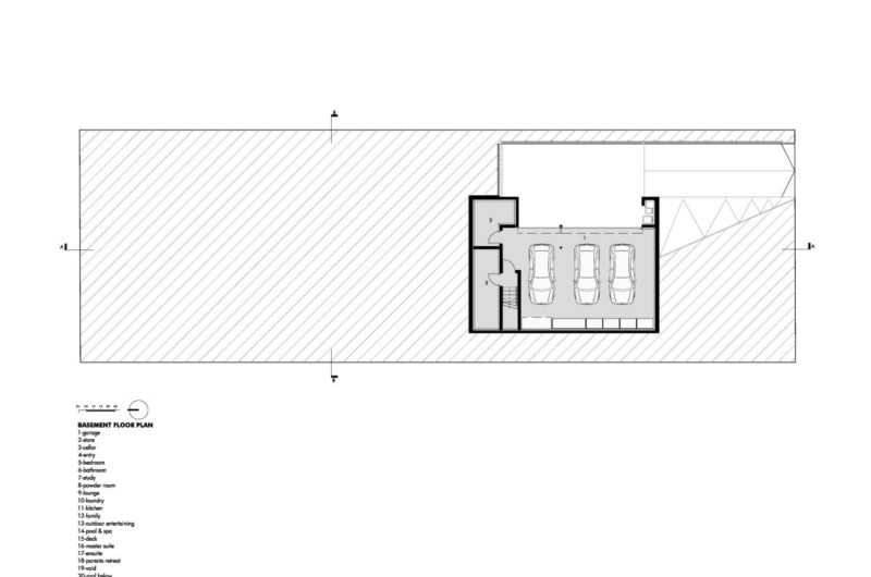
Located in Sandringham, Melbourne, Australia, this contemporary residence was designed by Crone Partners. It is set on a quite restrictive lot in a suburban location, so the client’s wishes had to be carefully considered and creatively integrated into the project.
The Good Residence (we love the name) does not create an unpleasant contrast with the surrounding houses, but it does stand out as beautiful and special. With crisp rectilinear shapes, its proportions do not disrupt the visual harmony of the neighborhood, but still it is easy to see that this is not an ordinary home.
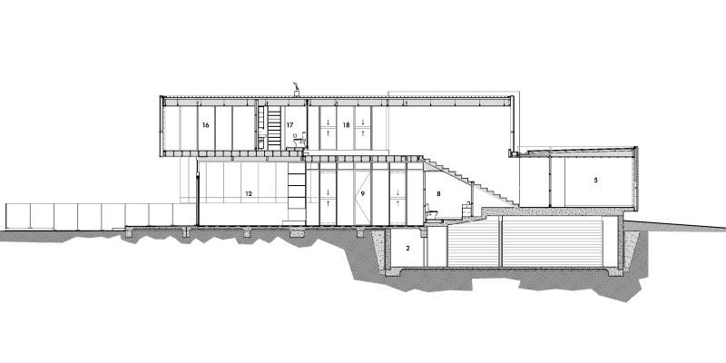
Each of the distinct box-like structures that compose the house has its clearly defined functionality. They work together to ensure privacy from prying eyes, but at the same time they represent excellent framing elements for the beautiful views. From inside the house, the surroundings are easily admirable and seem to be a natural extension of the indoor spaces.
Another aspect that we very much like about this residence is its eco-friendly character. Though not obviously so, the Good Residence features quite a few systems and elements that keep it sustainable. These include high performance tinted double glazing, heavily insulated west façade, natural cross ventilation for passive cooling, double skin façade to the east, 20,000-liter rain water storage tank (water is used for irrigation and toilet flushing), solar heating for the pool, and more.













More Similar Articles Like This
Outstanding Bodrum Houses in Yalikavak, Turkey
Exceptional Coronado Bay Front Estate in California
5 Ways to Turn Your Yard Into a Fancy Space
Lovelli Residence: Mediterranean-Style Dwelling in Bali
Vibrant Wood Tones: Explore a Spectrum of Spray Paint Colors!
Boracay Resort & Spa in the Fascinating Philippines
Shadowed Depths: Vintage-inspired Paint Colors for Dark Basements
Loving Luxury at Mardan Palace Resort, Turkey