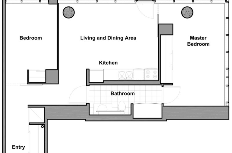
Kariouk Associates solved the spatial issues of the following interior by gathering the shower and the storage areas in elliptical columns that act as room dividers. This genuine solution was put into practice for a client in Ottawa, Ontario, Canada.
This interior design dismantles the idea of separating the public space form the private area, promoting the modern, urban living.
The space was organized with the help of a floor-to-ceiling wall of cabinetry that practically doubled the amount of storage. The shower was created in a way that could maintain a visually unified interior, becoming, despite its character of private space, the focal point of the unit.
A study that accommodates a work station, shelving and the keyboard of an electric piano, are folded into a storage wall, gaining in this way more space for the dwelling,
The opaque drapery fit within the ceiling contribute to providing privacy when is required.
White porcelain was used throughout in order to unify the interior and to contribute through its reflective properties to a luminous space.
The edges of the balcony are emphasized by a “garden” of fiber-optic acrylic rods, turning in this way a common and ordinary space into a vital outdoor living room.
Photos by Photolux Studio















More Similar Articles Like This
Astonishing El Tovar by the Sea
Amazing Four Seasons Resort Bora Bora
Wonderful Yachting Club Villas at Elounda Beach by Davide Macullo Architects
Vibrant Concrete Floor Paint Colors to Elevate Your Space
Green Gables Home In Fairfield, Connecticut, United States
Benjamin Moore Exterior Paint: Vibrant Shades for a Striking Home
Unique Click Clack Hotel In Bogota, Colombia
Tips for Choosing the Right Blue Paint Color for Your Dining Room