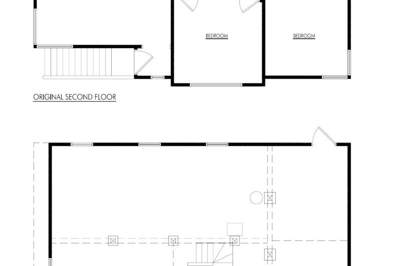
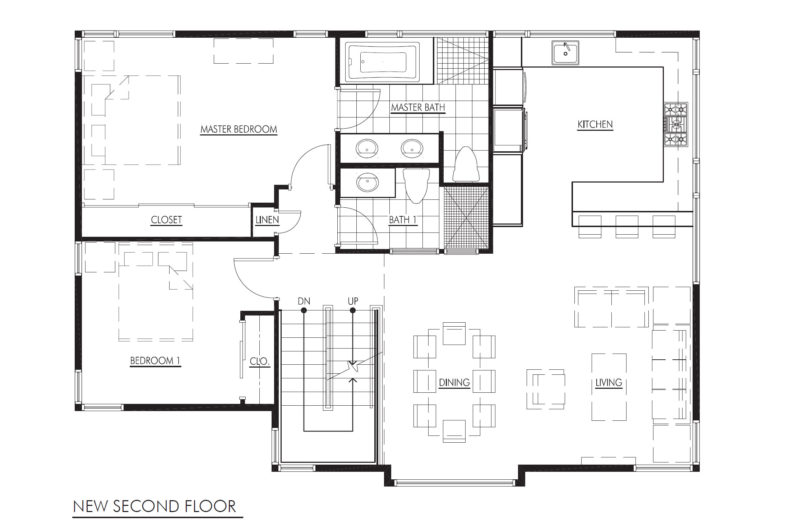
Situated in San Francisco, California, USA, the Open Box 2 House was completed in 2007 by Feldman Architecture Studio. The residence is in fact a modernized 1940s stucco house, which had small, dark rooms, an unfinished ground floor and little connection between the inside and outside areas.
In less than a year, this residence became a modern and luxurious home. The architects managed to enlarge the living space and connect it to the outside area. The ground floor was redesigned to include a bedroom, a family room, a new entryway and a bathroom. Elegant finishes were added such as light white oak floors, Italian Oak cabinetry and round glass tiles for the kitchen walls.
The large windows and skylights allow the light flow into the house, and at the same time offer beautiful views of the gardens and the surroundings. The family room is connected to the landscaped garden through bi-fold glass doors, and a skylight hatch is used as rooftop door to a view deck.
Photos by: Paul Dyer





















More Similar Articles Like This
The Superb Villa Verai on Phuket Island, Thailand
How Seattle Lawn Care Service Deals With Overgrown Lawns
Amazing Four Seasons Resort Bora Bora
Exquisite Crossacres Mansion In Surrey, England
Loving Luxury at Mardan Palace Resort, Turkey
5 Ways to Turn Your Yard Into a Fancy Space
Stunning Banyan Tree Ungasan Bali in Indonesia
The Sophisticated Casa Villa Flamingo in Spain