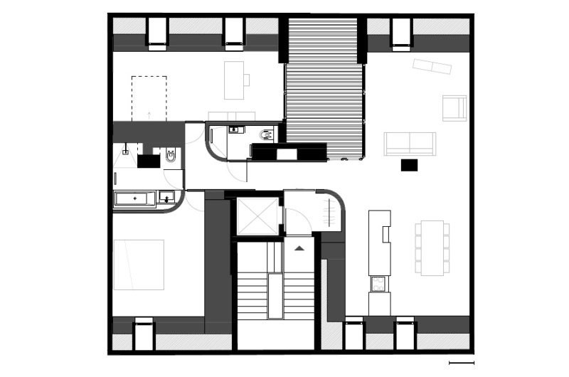
This 394-sq-ft space became the project of n-lab architects. The apartment is situated in Sandweiler, Luxembourg, and it impresses with the glossy interior design with a powerful contrast.
The main element used in the interior are the HPL panels. They were used as furniture elements and doors, but also to create a clean and neat aspect. One even more interesting element made from HPL panels is the folding bed.
The architects gave fluency to the spaces inside the apartment. A short corridor and round-edges created this effect while the all-over use of white connects the interior spaces. The necessary contrast was given by the dark-shaded wood flooring.













More Similar Articles Like This
The Sophisticated Casa Villa Flamingo in Spain
5 Ways to Turn Your Yard Into a Fancy Space
A Superb Italianate Mansion in California, USA
10 Different Types of Blue Paint Colors
70 Shades of Green: Benjamin Moore’s Vibrant Paint Colors
Exceptional Coronado Bay Front Estate in California
Spectacular Rooftop Apartment by Innocad
Loving Luxury at Mardan Palace Resort, Turkey