Located on a street in Berkeley, California, USA, this residence was designed by Baran Studio Architecture and was finished in 2014. It sits close by to a former rail line, and its design borrows some of the industrial qualities of the rail while staying in sync with the residential qualities of the local neighborhood.
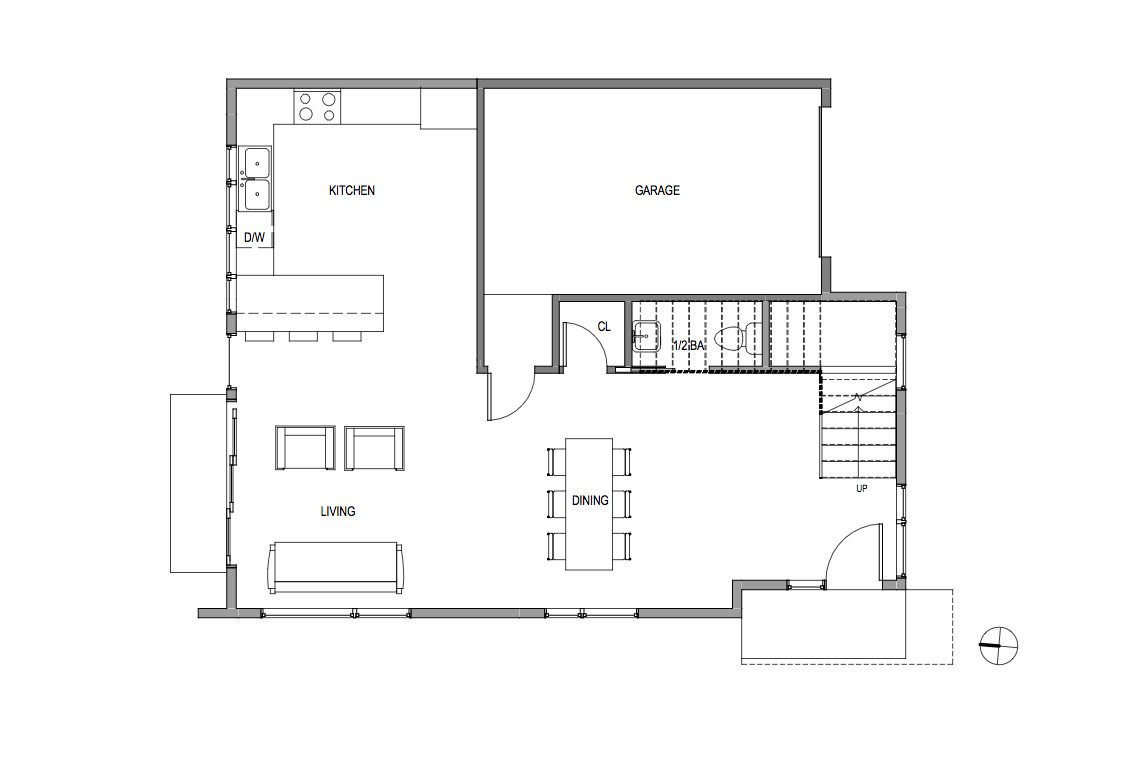
The wall and roof facing the old train track flaunt corrugated metal wraps, while the front of the residence has a much more traditional and innocent look. The interiors echo an open station thanks to a free plan and a series of vaulted ceilings. The different levels of the house are connected by an interior staircase, which was inserted right in front of the entryway. The kitchen boasts high-end appliances, the dining area is flooded with natural light and the upstairs bedrooms give off a feeling of comfort, elegance and minimalism.
From the architect:
This house is set on a traditional Berkeley street, and adjacent to a former rail line (traces of which are still visible from an aerial view.) The architecture borrows from the machine qualities of the railway to echo the former land use, and blends it with the character of the current residential neighborhood. Corrugated metal wraps down the roof and wall facing the former train line, while the front of the house expresses the pitch of the roof that ties it to more traditional house forms. The interior is an open expanse that also recalls a large, open station with a free plan and high vaulted ceilings.
Architects: Baran Studio Architecture
Location: Berkeley, CA, United States
Collaborators: REO
Project Year: 2014
Photographs: Peter Lyons











More Similar Articles Like This
Exquisite Crossacres Mansion In Surrey, England
Contemporary BO House In Envigado, Antioquia, Colombia
Gorgeous And Spacious Home In Sunset Strip
Secluded Naladhu Island in Maldives
Vibrant Wood Tones: Explore a Spectrum of Spray Paint Colors!
Shadowed Depths: Vintage-inspired Paint Colors for Dark Basements
Astonishing El Tovar by the Sea
Stunning Banyan Tree Ungasan Bali in Indonesia