When designing and constructing a modern home, architects need to pay attention to a plethora of important details, including shapes, materials, textures and perhaps the most important one of all: the owner’s desires. Villa H is an extraordinary project sketched out by Smartvoll Architekten ZT KG, and it can be found in Hallwang, Salzburg, Austria.
Boasting a sleek, clean, modern appearance, this luxurious abode offers exquisite living conditions for the owners and their esteemed guests. Apart from the multitude of high-end amenities and facilities found throughout, the home was also built to benefit from as much natural light as possible, while fluent room transitions and clever contrasts help give off a sense of warmth and comfort. Furthermore, even though its exterior design can be considered somewhat futuristic, the Villa H blends seamlessly with its surrounding areas, since it flaunts anorganic shapes and only a few colors.
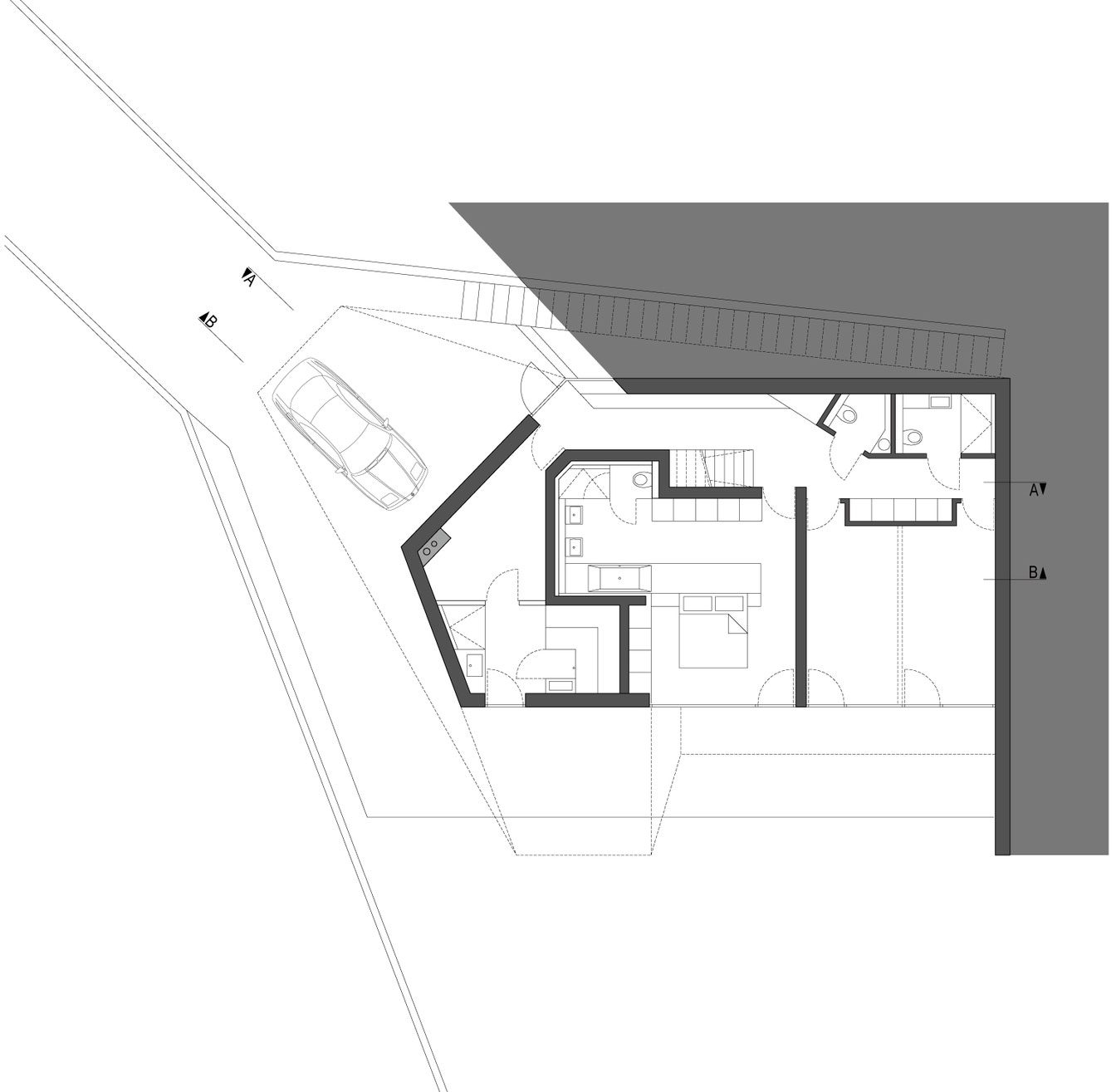
Another important design characteristic is the saddle roof, which also acts as a carport. There is also a staircase behind the house that leads to an older abode, thus ensuring a constant connection between old and new.
Summary
Villa H, designed by Smartvoll Architekten ZT KG, is a prime example of modern architecture located in Hallwang, Salzburg, Austria. This project emphasizes the importance of integrating the owner’s desires with architectural elements such as shapes, materials, textures, and the utilization of natural light. The villa showcases a sleek, modern appearance combined with high-end amenities and facilities, designed to offer exquisite living conditions. It stands out for its use of fluent room transitions, clever contrasts, and anorganic shapes, which not only contribute to a warm and comfortable atmosphere but also ensure that the structure harmonizes with its surroundings. Despite its somewhat futuristic exterior, the inclusion of a saddle roof that doubles as a carport and a staircase connecting to an older house highlights the blend of new and traditional elements, reinforcing the connection between past and present.
Related Interests
People interested in modern home designs like Villa H often explore topics such as sustainable building materials, energy-efficient home design, and smart home technologies. Interest in landscaping and outdoor living spaces that complement modern architecture is also common, as is curiosity about the integration of art and personal style into home design. Additionally, there’s a growing trend towards exploring how homes can incorporate green spaces and natural elements, promoting a healthier living environment. Architectural tours and showcases of renowned architects’ work provide further inspiration for those looking to build or renovate their homes with a modern aesthetic.















More Similar Articles Like This
Lawn Care Tips, The Basics For Each SeasonÂ
70 Shades of Green: Benjamin Moore’s Vibrant Paint Colors
Superb Luxury Penthouse in Portomaso, Malta
Gorgeous And Spacious Home In Sunset Strip
Seamlessly Apartment by the Beach by ZZ Architects
Beach House CN – A Superb Contemporary Home in Peru
6 Garden and Lawn Tips to Get Ready for Spring
10 Different Types of Blue Paint Colors