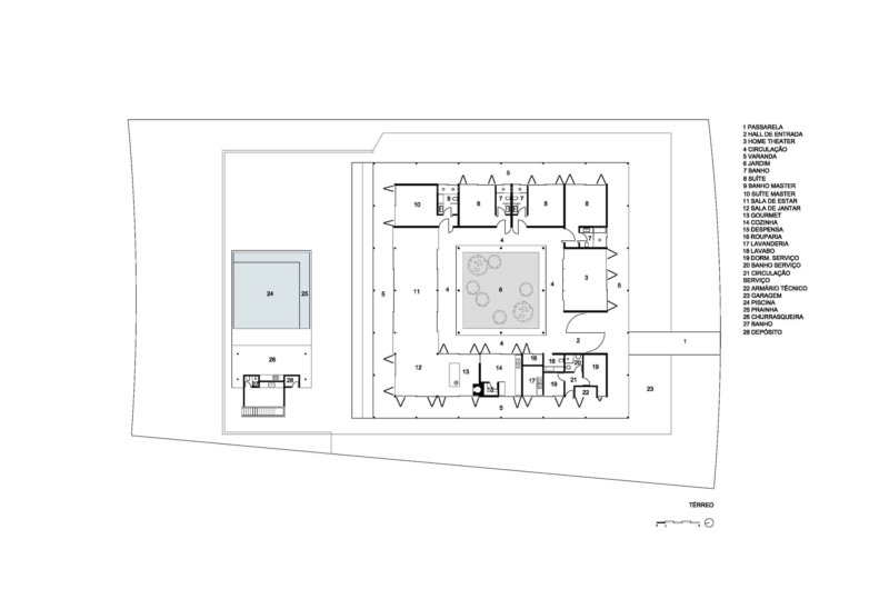
The house that we’re about to describe was constructed in 2010 in Porto Feliz, São Paulo, Brazil, and it was designed by Bernardes Jacobsen. It boasts 9,881 square feet of living space and is organized around a square layout that includes an inner courtyard at its core. The courtyard ensures lovely views for almost every room within the abode, and it also provides natural light and ventilation.
The main social area, the living room, is found at the back of the house and is connected directly to the outdoor garden and outdoor swimming pool thanks to a series of sliding glass doors. The intimate part of the residence is on the east façade, while the service areas are found in the western part. This separation was necessary in order to ensure that the bedrooms and bathrooms would benefit from the most privacy.













More Similar Articles Like This
Superb Luxury Penthouse in Portomaso, Malta
5 Ways to Turn Your Yard Into a Fancy Space
Santa Barbara Style Home in Paradise Valley, Phoenix
Lovelli Residence: Mediterranean-Style Dwelling in Bali
Gorgeous And Spacious Home In Sunset Strip
Exploring the New World of Luxury Hoteling
Vibrant Wood Tones: Explore a Spectrum of Spray Paint Colors!
Gayton Road Residence by Paxton Locher Studio