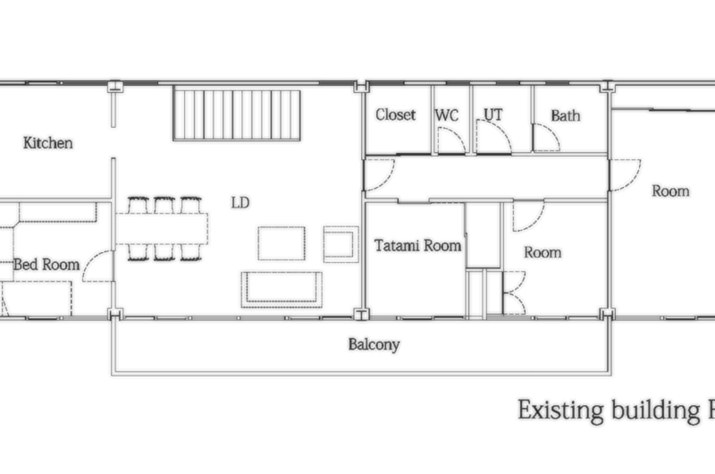
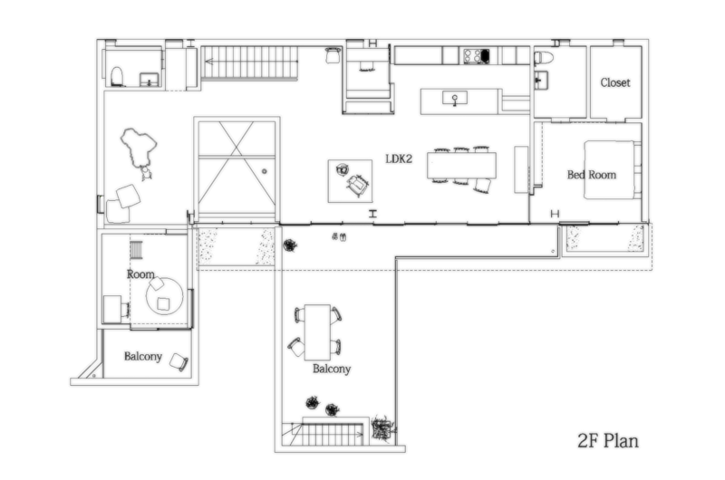
The House in Sakurashinmachi was built in 2013 by Comma Design, and it was designed to provide exceptional living conditions for two generations of the same family. It boasts 1,872 square feet of living space and includes an older structure that was built four decades ago, which is complemented by a brand new extension.
The existing structure was in poor shape and was in need of reinforcing against potential earthquakes. Even though the two generations benefit from their own separate living quarters, they share the outdoor areas such as the garden and the pathway that leads to the street.
Inside, the abode features a minimalistic atmosphere thanks to its large glass windows, white walls and rough finishes. There is also a concrete block wall with a mortared tile texture that acts as both a fence and an interior wall.
Photos by Takumi Ota

















More Similar Articles Like This
6 Garden and Lawn Tips to Get Ready for Spring
Santa Barbara Style Home in Paradise Valley, Phoenix
Lawn Care Tips, The Basics For Each SeasonÂ
Best paint colors for the living room
Different Types Of Foundations For Summer Houses and Garden Buildings
Tips for Choosing the Right Blue Paint Color for Your Dining Room
A Superb Italianate Mansion in California, USA
Green Gables Home In Fairfield, Connecticut, United States