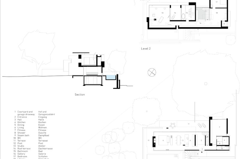
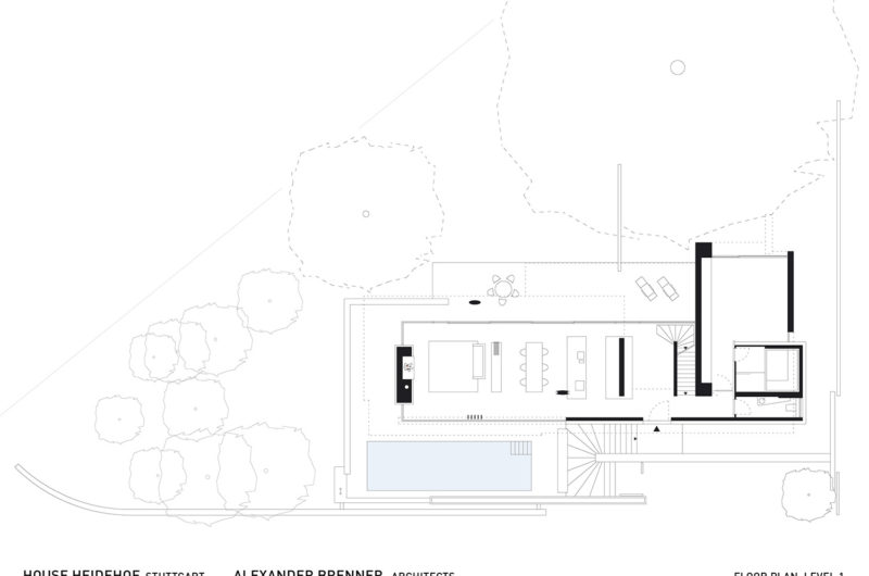
Situated in Stuttgart, Germany, House Heidehof was completed in 2008 by Alexander Brenner Architects studio. The designers managed to incorporate the building into the triangular-shaped plot, by placing it parallel to the road. The wood-clad garage wall, the pool walls rising in front of the house and the layers of garden offer privacy to the owners, protecting them from any unwanted looks.
After crossing the entrance gate, one can see a beautiful garden, and a swimming pool stretching to the left. The sunlight reflecting on the water flows into the living area through a window strip placed at the floor level.
The living area, including the kitchen and dinning space, is placed on the ground floor, while the bedrooms, bathrooms and a roof garden can be found on the upper floor. All the rooms offer beautiful views of an old plane tree. A simple and efficient solution was found for the storage problems. The designers created a copper-clad unit along the north wall, which conceals all appliances and building materials, and also serves as a storage space for different objects.









































More Similar Articles Like This
Lawn Care Tips, The Basics For Each SeasonÂ
Gorgeous And Spacious Home In Sunset Strip
Contemporary BO House In Envigado, Antioquia, Colombia
Seamlessly Apartment by the Beach by ZZ Architects
How Seattle Lawn Care Service Deals With Overgrown Lawns
Opulent Mandarin Oriental Hotel in Paris
Spectacular Rooftop Apartment by Innocad
Wonderful Yachting Club Villas at Elounda Beach by Davide Macullo Architects